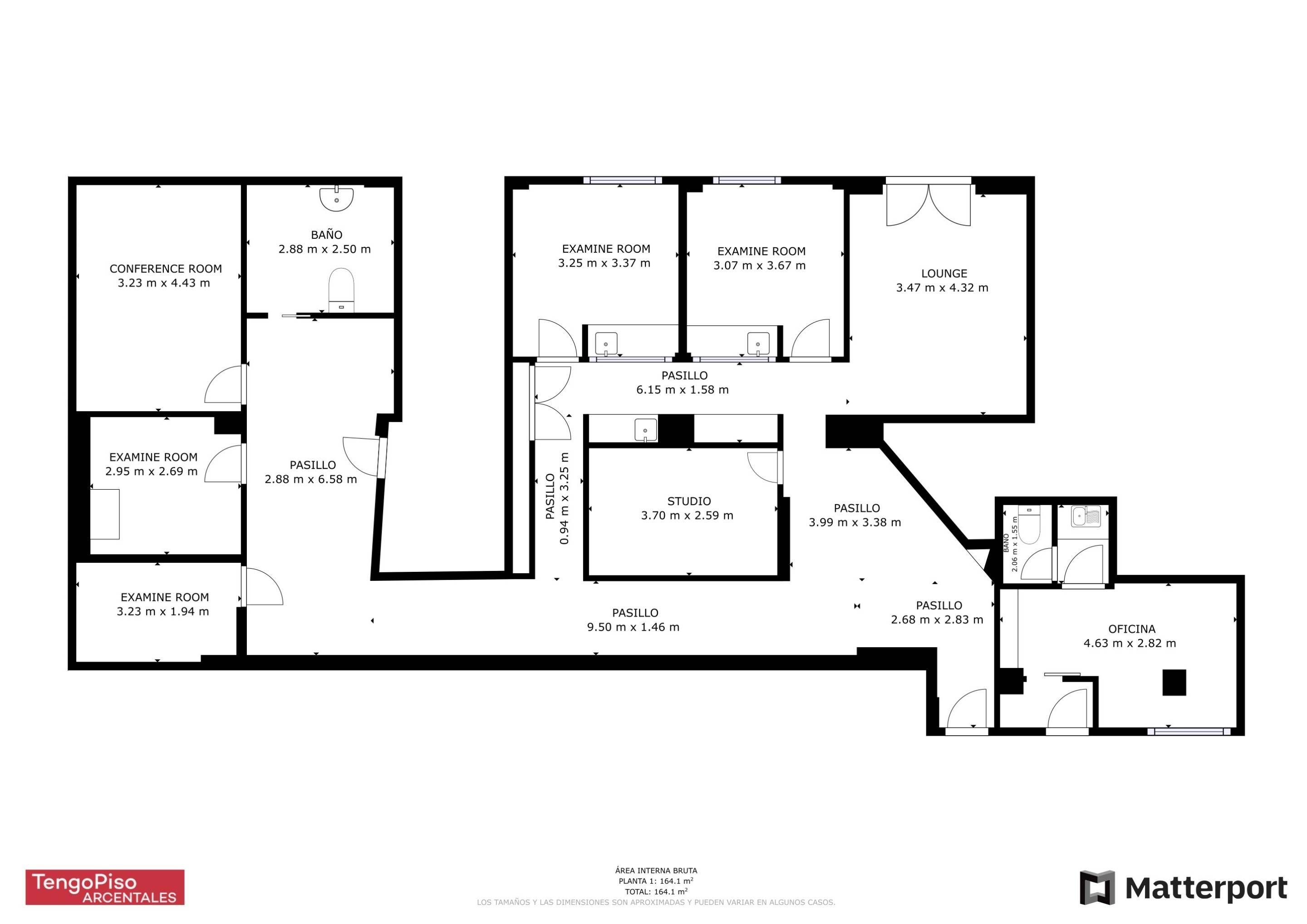
SE VENDE LOCAL COMERCIAL EN LA ZONA DE ARTURO SORIA. El local se localiza en una urbanización , con acceso por dos calles, adaptado a personas con movilidad reducida. Totalmente reformado a capricho. Dispone de dos gabinetes para la atención al publico, recepción, varios despachos uno de ellos habilitada para el personal con cocina, y electrodomésticos. Cuenta con una sala de espera. Baño completo para el personal, con taquillas y vestuario. Aseo para el publico. Armarios empotrados ocultos. Zona de esterilización y laboratorio comunicada e independizada del local, con un baño completo. Ventanas de climalit con doble cristal. Calefacción eléctrica y agua caliente por termo eléctrico. Puerta blindada y cierre centralizado. Electricidad y fontanería cambiada. Techos altos. A escasos metros tenemos todos los servicios, ( colegios, comercios, centro comercial , hospitales, farmacias y muy buena comunicación con el transporte público.. Ven a visitarlo, posibilidad de convertir en varias viviendas.
-
-
-
-
-
-
-
-
-
-
-
-
-
-
-
-
-
-
-
-
-
-
-
-
-
-
-
-
-
-
-
-
-
-
-
-
-
-
-
-
-
-
-
-
-
-
-
-
-
-
-
-
-
-
-
-
-
-
-
-
-
-
-
-
-
-
-
-
-
-
-
-
-
-
-
-
-
-
-
-
-
-
-
-
-
-
-
-
-
-
-
-
-
-
-
-
-
-
-
-
-
-
-
-
-
-
-
-
-
-
-
-
-
-
-
-
-
-
-
-
-
-
-
-
-
-
-
-
-
-
-
-
-
-
-
-
-
-
-
-
-
-
-
-
-
