Connect your home
Choose the Fiber that best suits you.
Tordera
Ubicación y accesibilidad:
Nave industrial en venta en rentabilidad situada en el polígono industrial Can Verdalet, Tordera, una de las zonas estratégicas del Maresme, Barcelona. La nave cuenta con acceso rápido a la C-32 y la AP-7, principales ejes de comunicación que facilitan la distribución y logística en la región. Además, está bien conectada con la N-II, permitiendo un fácil desplazamiento hacia Barcelona y Girona. La zona dispone de servicio de transporte público con paradas de autobús cercanas y la estación de tren de Tordera a pocos minutos.
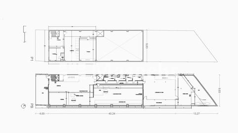
Características de la nave:
Superficie total: 517,24 m².
Planta baja: 398,97 m².
Primera planta: 118,27 m².
Oficinas: 27,88 m².
Dimensiones: 10 metros de ancho por 45 metros de largo.
Altura libre: 4 metros, ideal para almacenamiento y producción.
Estructura: Mixta de acero y hormigón, garantizando solidez y resistencia.
Cubierta: Chapa galvanizada.
Accesos: Cuenta con acceso peatonal y portón para vehículos industriales.
Instalaciones: Aire acondicionado centralizado con torre de refrigeración. Próximamente dispondrá de cámara de congelación y altillo.
Ascensor/montacargas para facilitar la movilidad interna.
Uso ideal:
Esta nave es perfecta para inversión.
Información adicional:
Estado de conservación: Buena.
Disponibilidad: Actualmente alquilado.
Ventajas de la propiedad:
Excelente ubicación en el polígono industrial Can Verdalet, Tordera.
Conexión con C-32, AP-7 y N-II, facilitando el transporte y la logística.
Nave versátil con instalaciones de refrigeración y climatización.
Property type
Condition
Lift
Interest type
Estimated monthly payment
1.342 € *
* Provisional, subject to study and offer from CaixaBank
Are you already looking for finance?
We help you find the option that best suits you.
Service offered by
Fotocasa does not act as a financial intermediary. The information provided is for guidance only, based on publicly available market information. The credit institution will contact the potential borrower to negotiate, facilitate, and agree upon the applicable financial conditions.
Your monthly payment
1.342 € *
For 30 years (360 payments)
* Provisional, subject to study and offer from CaixaBank
Property price:
375.000 €
Taxes and Fees:
39.699 €
Total property cost:
414.699 €
Savings contributed:
75.000 €
Mortgage amount:
339.699 €
Total Interest:
143.501 €
Total cost with mortgage
558.200 €
Principal + interest + taxes and fees
Are you already looking for finance?
We help you find the option that best suits you.
Service offered by
Fotocasa does not act as a financial intermediary. The information provided is for guidance only, based on publicly available market information. The credit institution will contact the potential borrower to negotiate, facilitate, and agree upon the applicable financial conditions.
Choose the Fiber that best suits you.
Get electricity and gas online, no contract required
Please let us know about it so we can correct it.