Connect your home
Choose the Fiber that best suits you.
Vilanova i la Geltrú
OPORTUNIDAD DE INVERSIÓN – VENTA DE TALLER MECÁNICO EN VILANOVA I LA GELTRÚ
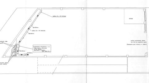
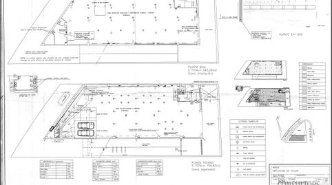
Se vende nave industrial con inquilinos, ubicada en la zona de La Bòvila, en Vilanova i la Geltrú. Actualmente en funcionamiento, es una opción ideal para inversores que buscan una rentabilidad inmediata y sostenida.
La propiedad dispone de dos amplias plantas de 577 m² construidos cada una, ambas con las instalaciones completamente equipadas para el desarrollo de actividades mecánicas, incluyendo áreas destinadas a la reparación y mantenimiento de vehículos. La nave se encuentra en buen estado de conservación.
La propiedad está actualmente alquilada a un taller con clientela consolidada, lo que la convierte en una inversión segura y con retorno inmediato, ofreciendo una rentabilidad superior al 7% anual.
La ubicación en La Bòvila proporciona un acceso rápido a las principales vías de comunicación, facilitando tanto el transporte de mercancías como la llegada de clientes. La cercanía a servicios y otras empresas del entorno añade un valor adicional a esta propiedad.
Este inmueble representa una oportunidad única para quienes deseen realizar una inversión en una de las zonas industriales más consolidadas de Vilanova i la Geltrú. No pierda la ocasión de visitar esta nave y conocer su gran potencial.
Para más información, póngase en contacto con nosotros.
Typology
Interest type
Estimated monthly payment
2.819 € *
* Provisional, subject to study and offer from CaixaBank
Are you already looking for finance?
We help you find the option that best suits you.
Service offered by
Fotocasa does not act as a financial intermediary. The information provided is for guidance only, based on publicly available market information. The credit institution will contact the potential borrower to negotiate, facilitate, and agree upon the applicable financial conditions.
Your monthly payment
2.819 € *
For 30 years (360 payments)
* Provisional, subject to study and offer from CaixaBank
Property price:
790.000 €
Taxes and Fees:
81.497 €
Total property cost:
871.497 €
Savings contributed:
158.000 €
Mortgage amount:
713.497 €
Total Interest:
301.406 €
Total cost with mortgage
1.172.903 €
Principal + interest + taxes and fees
Are you already looking for finance?
We help you find the option that best suits you.
Service offered by
Fotocasa does not act as a financial intermediary. The information provided is for guidance only, based on publicly available market information. The credit institution will contact the potential borrower to negotiate, facilitate, and agree upon the applicable financial conditions.
Choose the Fiber that best suits you.
Save 30% on a 5-star service.
Please let us know about it so we can correct it.