- new
- Top+
House or chalet in C.O.I., Pedanías de Badajoz
- 4 rooms ·
- 2 bath ·
- 121 m² ·
- new
- Top+
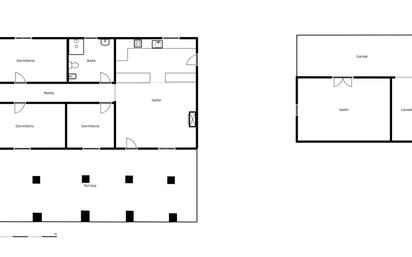
Vivienda unifamiliar aislada en la Urbanización Botoa, conjunto diseminado de parcelas con viviendas construidas situado a 17 km al Noreste de Badajoz al que se accede a través de la carretera EX-100. La vivienda tiene una superficie de aproximadamente 232 m2 en una parcela de 1.000 m2. Vivienda unifamiliar que consta de una sola planta que cuenta con una distribución en diversas dependencias, cuenta con salón, cocina y baño principal. Tiene una parcela con diferentes usos y se encuentra ubicada en la periferia de Badajoz. Cuenta con puerta de entrada tipo garaje con corredera manual, ventanas de aluminio y rejas de hierro en el exterior, carpintería interior de madera y paredes de yeso pintado. El inmueble se encuentra en una zona tranquila, rodeado por viviendas residenciales de similares características y con amplias zonas exteriores. Cuenta con facil acceso desde la carretera EX-100. Proindiviso. Se vende únicamente el 50 de la propiedad que se indica. - La parte vendedora es propietaria de una participación indivisa del Inmueble, no siendo por ello, propietaria del 100 en pleno dominio. Dicha participación indivisa podría ser objeto de adquisición por parte del resto de copropietarios. El Inmueble se transmitirá: (i) como cuerpo cierto y a tanto alzado (ii) como un todo, inseparable (iii) en el estado registral y catastral en el que se encuentre (iv) en el estado físico, calidades, jurídico, urbanístico, administrativo, de licencias, de protección, de conservación y limpieza en el que se encuentre (v) al corriente de Gastos e Impuestos que por Ley corresponda al Vendedor sobre el porcentaje de propiedad que ostenta la parte vendedora. y (vi) sin dotación de servicios y suministros. El Adquirente asumirá: (i) la situación física y estado de conservación (ii) la situación urbanística (iii) las discrepancias entre la realidad física y la realidad registral y catastral o en la cabida del Inmueble (iv) la adecuación registral y catastral del Inmueble y (v) los tramites que conlleven la obtención de la Posesión Judicial del Inmueble. El precio de venta de este Inmueble se ha determinado en base a las anteriores circunstancias, que han supuesto un menor valor del mismo, y que deberán ser expresamente aceptadas por el adquirente en la formalización de la transmisión del Inmueble. Se recomienda que el comprador obtenga asesoramiento profesional y legal antes de adoptar la decisión de compra.
