Flat in Calle Alejandro Casona, 14, Villaviciosa - Amandi
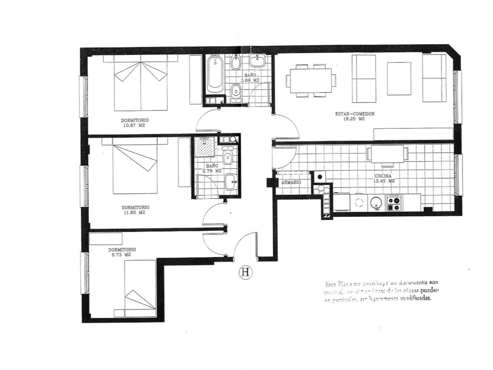
Piso 3 habitaciones con garaje y trastero en Villaviciosa (Asturias) PARTICULAR VENDE – ABSTENERSE AGENCIAS Se ofrece piso luminoso de 89,58 m², céntrico en Villaviciosa, en edificio tranquilo de cuatro alturas con ascensor y solo tres vecinos por planta. Vivienda con tres habitaciones, dos baños, plaza de garaje y trastero incluidos, ideal tanto como residencia habitual como segunda vivienda en Asturias. La vivienda cuenta con tres habitaciones amplias, luminosas y silenciosas, todas ellas orientadas a un gran patio de manzana comunal, sin tráfico, lo que garantiza descanso, tranquilidad y privacidad. Dispone de dos baños completos: uno en suite en la habitación principal con ducha, y un segundo baño con bañera, perfecto para el uso diario o familiar. El piso se completa con un salón espacioso, que permite crear diferentes ambientes de estar y comedor, y una cocina amplia y funcional, equipada con lavavajillas, horno, vitrocerámica, lavadora y frigorífico, además de contar con un práctico espacio destinado a despensa y útiles de limpieza. La vivienda dispone de calefacción individual de gas con caldera propia, lo que permite un control eficiente del consumo. El precio incluye plaza de garaje cómoda, situada en la planta -1, así como un trastero cercano a la plaza, ideal para almacenamiento adicional. Los gastos de comunidad son de 100 € mensuales para la vivienda y 70 € semestrales para el garaje. Ubicación La vivienda se encuentra en una zona céntrica y bien comunicada de Villaviciosa, a tan solo 250 metros de la estación de autobuses (aprox. 3 minutos caminando), con fácil acceso a todos los servicios. Villaviciosa es una de las localidades más atractivas de la costa asturiana, reconocida por su alta calidad de vida, su entorno natural privilegiado, su oferta cultural y gastronómica, y su excelente conexión con el mar y las principales ciudades de Asturias. Playa de Rodiles: a unos 6 km Ribadesella: a unos 30 km Gijón: a unos 30 km Oviedo: a unos 40
- 3 rooms·
- 2 bath·
- 90 m²·
- Elevator
