Connect your home
Choose the Fiber that best suits you.





Burriana / Borriana
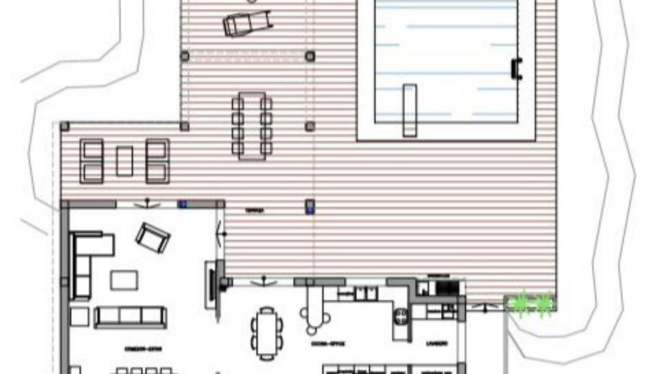
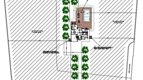
Con Proyecto Básico y Licencia de Obras para construir una vivienda de dos plantas y 360 m2 en una parcela de 12.135 m2 registrados, reales más.
Imagínese una casapalacio que puede adaptar a su gusto. Piscina, zonas deportivas, arboleda, frutales, todo lo que pueda imaginar. Puede aumentar o disminuir la superficie proyectada y con Licencia municipal.
En la actualidad hay una construcción de 170 m2 que necesita ser rehabilita. La edificabilidad del terreno es de un 4 % de la superficie.
FACILIDADES DE PAGO.
Property type
Availability
Condition
Age
Garage
Lift
Furnished
Energy
Emissions
Interest type
Estimated monthly payment
466 € *
* Provisional, subject to study and offer from CaixaBank
Are you already looking for finance?
We help you find the option that best suits you.
Service offered by
Fotocasa does not act as a financial intermediary. The information provided is for guidance only, based on publicly available market information. The credit institution will contact the potential borrower to negotiate, facilitate, and agree upon the applicable financial conditions.
Your monthly payment
466 € *
For 30 years (360 payments)
* Provisional, subject to study and offer from CaixaBank
Property price:
135.000 €
Taxes and Fees:
10.003 €
Total property cost:
145.003 €
Savings contributed:
27.000 €
Mortgage amount:
118.003 €
Total Interest:
49.849 €
Total cost with mortgage
194.852 €
Principal + interest + taxes and fees
Are you already looking for finance?
We help you find the option that best suits you.
Service offered by
Fotocasa does not act as a financial intermediary. The information provided is for guidance only, based on publicly available market information. The credit institution will contact the potential borrower to negotiate, facilitate, and agree upon the applicable financial conditions.
Choose the Fiber that best suits you.
Get electricity and gas online, no contract required
Please let us know about it so we can correct it.