Connect your home
Choose the Fiber that best suits you.





Bustarviejo
COHOUSING BUSTARVIEJO: Proyecto cooperativo de viviendas en cesión de uso.
La promoción se compone de 17 viviendas de dos tamaños, de las cuales actualmente solo quedan 3 disponibles (2 grandes y una pequeña), además de una casa común y zonas exteriores. El Estudio de Arquitectura F5, con experiencia en el desarrollo de proyectos similares al nuestro, nos ha ayudado a diseñar viviendas bioclimáticas, de construcción ecológica y máxima eficiencia energética.
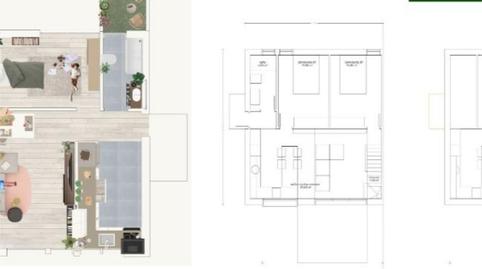
· CASA GRANDE, de 81m2 construidos. Salón comedor, cocina, baño y dos dormitorios en la planta baja, así como un altillo o ático que se puede dejar abierto o convertir en habitación.
· CASA PEQUEÑA, de 64m2 construidos. Salón comedor, cocina, baño y un dormitorio en la planta baja, así como un altillo o ático que se puede dejar abierto o convertir en habitación.
· Las viviendas comparten por parejas un trastero o zaguán, aledaño a la vivienda y disponen de plaza de aparcamiento.
La CASA COMÚN, con más de 150 m2 permitirá la interacción y el fortalecimiento de los vínculos, contará con sala de estar, cocina, comedor, sala polivalente, terraza, lavandería y tendedero. En su cubierta, se instalarán 40kW de placas fotovoltaicas que nos permitirán ser autosuficientes energéticamente durante algunos meses del año. También recogeremos el agua de los tejados para el riego de las zonas verdes.
En los más de 5.000m2 de ZONAS EXTERIORES, pretendemos desarrollar actividades y crear espacios tales como huertos ecológicos o zonas infantiles.
La forma jurídica que sostiene el proyecto es la de sociedad cooperativa que apuesta por la CESIÓN DE USO como modelo de acceso a la vivienda. La condición de socio o socia proporciona el derecho a habitar una casa, cuya propiedad permanece en manos de la cooperativa, en la cual, las decisiones, se toman por el acuerdo entre sus integrantes.
Si necesitas más información, puedes contactarnos o consultar nuestra web cohousingbustarviejo
Property type
Availability
Orientation
Condition
Age
Lift
Furnished
Energy
Emissions
Interest type
Estimated monthly payment
858 € *
* Provisional, subject to study and offer from CaixaBank
Are you already looking for finance?
We help you find the option that best suits you.
Service offered by
Fotocasa does not act as a financial intermediary. The information provided is for guidance only, based on publicly available market information. The credit institution will contact the potential borrower to negotiate, facilitate, and agree upon the applicable financial conditions.
Your monthly payment
858 € *
For 30 years (360 payments)
* Provisional, subject to study and offer from CaixaBank
Property price:
250.000 €
Taxes and Fees:
17.071 €
Total property cost:
267.071 €
Savings contributed:
50.000 €
Mortgage amount:
217.071 €
Total Interest:
91.698 €
Total cost with mortgage
358.769 €
Principal + interest + taxes and fees
Are you already looking for finance?
We help you find the option that best suits you.
Service offered by
Fotocasa does not act as a financial intermediary. The information provided is for guidance only, based on publicly available market information. The credit institution will contact the potential borrower to negotiate, facilitate, and agree upon the applicable financial conditions.
Choose the Fiber that best suits you.
Get electricity and gas online, no contract required
Please let us know about it so we can correct it.