Connect your home
Choose the Fiber that best suits you.




Cheste
VENTA DE EDFICIO: PLANTA BAJA Y 2 VIVIENDAS PARA ACABAR A TU GUSTO.
DESCRIPCIÓN :
Edificio de 446 m2, compuesto por:
- planta baja de 150 m2
- planta primera de 148 m2
- y planta segunda de 148 m2
EDIFICIO entero por 290.000 €. PRECIO NEGOCIABLE.
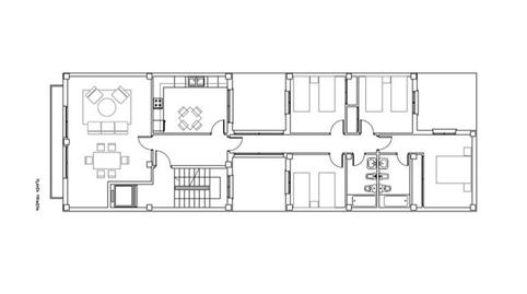
Fachada revestida y distribuciones hechas según plano adjunto, PARA ACABAR A TU GUSTO.
A 2 minutos de la estación de tren. Soleado con Orientación Sur. Nueva Construcción. Posibilidad de poner ascensor. Para Elegir acabados a Tu Gusto. A 10 minutos del Circuito Ricardo Tormo.
El Edificio consta de dos viviendas, Planta Primera de 147,95 m2 que consta de espacio para 4 habitaciones, cocina, salón, dos baños, balcón de 6 m de longitud y 3 patios practicables de 9 m2 cada uno y Planta Segunda de iguales características, con 3 patios de luces no practicables de 9 m2 cada uno. Y bajo diáfano de 150 m2. Posibilidad de colocar ASCENSOR según plano adjunto.
DESCRIPCIÓN SOBRE TRANSPORTE:
A 1 minuto a pié de la estación de Trenes, Muy bien comunicado en coche con Valencia.
DESCRIPCIÓN SOBRE BARRIO ZONA:
A 1 minuto de Mercadona. A 5 minutos del polideportivo. La calle Chiva es la calle principal del pueblo por donde hacen las entradas de los toros en las fiestas.
Property type
Availability
Orientation
Condition
Age
Lift
Furnished
Energy
Emissions
Interest type
Estimated monthly payment
1.039 € *
* Provisional, subject to study and offer from CaixaBank
Are you already looking for finance?
We help you find the option that best suits you.
Service offered by
Fotocasa does not act as a financial intermediary. The information provided is for guidance only, based on publicly available market information. The credit institution will contact the potential borrower to negotiate, facilitate, and agree upon the applicable financial conditions.
Your monthly payment
1.039 € *
For 30 years (360 payments)
* Provisional, subject to study and offer from CaixaBank
Property price:
290.000 €
Taxes and Fees:
31.071 €
Total property cost:
321.071 €
Savings contributed:
58.000 €
Mortgage amount:
263.071 €
Total Interest:
111.130 €
Total cost with mortgage
432.201 €
Principal + interest + taxes and fees
Are you already looking for finance?
We help you find the option that best suits you.
Service offered by
Fotocasa does not act as a financial intermediary. The information provided is for guidance only, based on publicly available market information. The credit institution will contact the potential borrower to negotiate, facilitate, and agree upon the applicable financial conditions.
Choose the Fiber that best suits you.
Get electricity and gas online, no contract required
Please let us know about it so we can correct it.