Calculate your mortgage
Compare offers from different banks.
Córdoba Capital
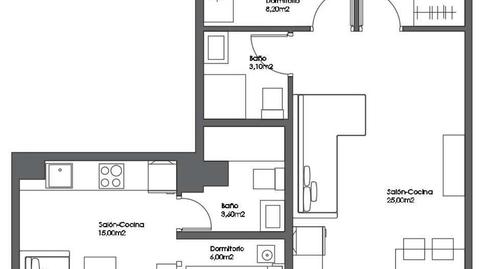
Descubre este excepcional loft en la zona de Camino de los Sastres junto Avenida de Republica Argentina y a uno de los Hoteles de 5 estrellas de la ciudad de Córdoba, una oportunidad única en una propiedad de nueva construcción que ofrece comodidad y modernidad en un espacio bien distribuido.
Con una superficie total de 25m2 aproximadamente, este local cuenta con un gran espacio diáfano acogedor con salón comedor integrado con una moderna cocina americana amueblada y equipada con electrodomésticos de encastre y una habitación doble. Todo ello con baño completo con placa de ducha, que añaden funcionalidad y confort al espacio habitable, proporcionando un área privada ideal para descansar y relajarse.
La carpintería interior de madera lacada en blanco y el suelo de gres porcelánico agregan un toque de elegancia y calidez al ambiente, mientras que las ventanas exteriores de aluminio climalit garantiza un buen aislamiento térmico y acústico. Entre los extras también incluimos la puerta blindada, que proporciona seguridad y tranquilidad a los residentes.
Además, la ubicación estratégica del inmueble brinda acceso rápido y fácil a una amplia gama de servicios y comodidades, como transporte público, centros comerciales, centros médicos, colegios, parques, supermercados y zonas infantiles.
No pierdas la oportunidad de aprovechar este fantástico local de uso vivienda en una de las zonas más buscadas de Córdoba. ¡Contáctanos hoy mismo para más información y para organizar una visita!
INFORMACIÓN IMPORTANTE. En cumplimiento de la normativa vigente tenemos a disposición del cliente Documento de información Abreviada. Los precios indicados no tienen caducidad, pero pueden ser alterados sin previo aviso. Los GASTOS DE LA COMPRA son Según ley (Notaria, Registro e Impuestos) y no están incluidos. Los Honorarios de la agencia NO están incluidos.
A menos que la oferta así lo especifique, el precio del inmueble no incluye el contenido: mobiliario, electrodomésticos, ropa, herramientas, vehículos o cualquier artículo o elemento decorativo que puedan aparecer en las imágenes.
Typology
Hot water
Heating
Status
Antiquity
Floor
Energy consumption
Emissions
Compare offers from different banks.
Choose the Fiber that best suits you.
Save 30% on a 5-star service.
Please let us know about it so we can correct it.