Calculate your mortgage
Compare offers from different banks.





Córdoba Capital
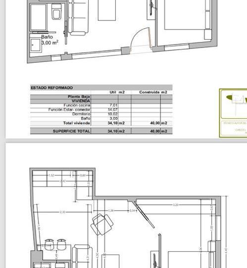
Local con proyecto aprobado para cambio de uso a vivienda, listo para construir ubicación centrica y tranquila a pie de calle hace esquina, abstenerse inmobiliarias.
Typology
Orientation
Status
Antiquity
Energy consumption
Emissions
Compare offers from different banks.
Choose the Fiber that best suits you.
Save 30% on a 5-star service.
Please let us know about it so we can correct it.