Connect your home
Choose the Fiber that best suits you.
Illescas
Promoción de 8 Chalets en Borox
Obra Nueva en Borox - Residencial Castilla
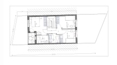
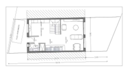
Chalet adosado 120 m², 3 dormitorios, jardín y aparcamiento (Cooperativa)
Inmobiliaria & Reformas La Sagra te ofrece en EXCLUSIVA esta promoción de 8 chalets unifamiliares adosados en Borox (Toledo) en régimen de cooperativa, una opción ideal si buscas obra nueva, buenas calidades y una compra planificada con pagos cómodos.
Características principales:
- Viviendas unifamiliares adosadas (solo 8 unidades)
- Superficie construida vivienda: 120 m²
- Distribución: 3 dormitorios | 2 baños + 1 aseo
- Aparcamiento privado (según vivienda, aprox. 16–18 m²)
- Jardín trasero (según vivienda, aprox. 28–48 m²)
Precio orientativo y forma de entrada:
- Precio desde 221.000 € (según vivienda).
- Señal / reserva: 3.000 €
- Arras: plazo máximo 6 meses (según condición de la promoción).
- Pagos aplazados.
- Hipoteca orientativa: cuota aprox. 824–834 €/mes (cálculo conservador a 30 años, 3%).
Memoria de calidades (lo que marca la diferencia):
- Calificación energética A
- Aerotermia para ACS y calefacción
- Fachada con SATE (aislamiento térmico/acústico)
- Carpintería exterior PVC gris antracita + Climalit (vidrio de seguridad en zonas indicadas)
- Puerta de entrada blindada y puertas interiores lacadas en blanco
- Armarios empotrados (módulos)
- Cocina amueblada con vitro, campana y horno (opciones de elección)
- Baños con sanitarios tipo Roca o similar
Plazos aproximados (planificación clara):
- Reservas: enero–febrero
- Constitución cooperativa: marzo 2026
- Inicio pagos trimestrales: junio 2026
- Inicio de obras: junio 2026
- Finalización: mayo 2027
- Escritura y subrogación: junio 2027
¿Por qué te interesa?
- Porque es una obra nueva, bien pensada, con jardín + aparcamiento, y con una forma de compra organizada.
- Además, si quieres ajustar acabados o distribución con criterio, nuestro equipo puede asesorarte para personalizar la vivienda a tu estilo.
¡No dejes pasar esta oportunidad!
Escríbenos para recibir disponibilidad por número de viviendas, planos y detalle de pagos, y concertar una reunión informativa.
¡Contáctanos hoy mismo a través del botón de WhatsApp de la web!
www.reformaslasagra.com
Inmobiliaria & Reformas La Sagra
Tu inversión segura, con acompañamiento integral y visión a futuro.
Property type
Availability
Heating
Age
Lift
Furnished
Energy
Emissions
Interest type
Estimated monthly payment
785 € *
* Provisional, subject to study and offer from CaixaBank
Are you already looking for finance?
We help you find the option that best suits you.
Service offered by
Fotocasa does not act as a financial intermediary. The information provided is for guidance only, based on publicly available market information. The credit institution will contact the potential borrower to negotiate, facilitate, and agree upon the applicable financial conditions.
Your monthly payment
785 € *
For 30 years (360 payments)
* Provisional, subject to study and offer from CaixaBank
Property price:
221.000 €
Taxes and Fees:
21.886 €
Total property cost:
242.886 €
Savings contributed:
44.200 €
Mortgage amount:
198.686 €
Total Interest:
83.932 €
Total cost with mortgage
326.818 €
Principal + interest + taxes and fees
Are you already looking for finance?
We help you find the option that best suits you.
Service offered by
Fotocasa does not act as a financial intermediary. The information provided is for guidance only, based on publicly available market information. The credit institution will contact the potential borrower to negotiate, facilitate, and agree upon the applicable financial conditions.
Choose the Fiber that best suits you.
Save 30% on a 5-star service.
Please let us know about it so we can correct it.