Connect your home
Choose the Fiber that best suits you.
Madrid Capital
DIZA consultores les presenta esta oportunidad para invertir.
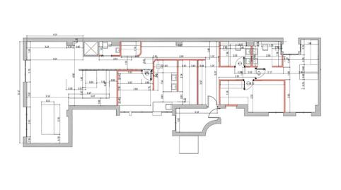
En la primera planta de un edificio construido a mediados del siglo XX, se encuentra esta vivienda para reformar de 170 metros cuadrados.
La vivienda se encuentra para reforma total, demolida, con múltiples posibilidades.
Cuenta con dos grandes ventanales exteriores de orientación oeste y puerta de servicio independiente.
Las fotografías corresponden a tres planos con tres propuestas de reforma distintas.
La finca, señorial, cuenta con ascensor y portero en horario comercial.
Chamberí es una de las zonas más lujosas y con mejor calidad de vida de Europa. Gracias a la amplia oferta gastronómica, cultural y comercial, se trata de una formidable zona donde vivir e invertir.
Estaremos encantados de atenderle.
DIZA Consultores Inmobiliarios
Inmobiliaria de lujo en Madrid especializada en comprar, vender y alquilar pisos en las zonas premium de Madrid: Barrio de Salamanca, Almagro, Chamartín, Retiro, Pozuelo, Aravaca, Boadilla.
Convertimos Sueños en Hogares
Property type
Availability
Orientation
Condition
Age
Floor
Lift
Furnished
Energy
Emissions
Interest type
Estimated monthly payment
3.323 € *
* Provisional, subject to study and offer from CaixaBank
Are you already looking for finance?
We help you find the option that best suits you.
Service offered by
Fotocasa does not act as a financial intermediary. The information provided is for guidance only, based on publicly available market information. The credit institution will contact the potential borrower to negotiate, facilitate, and agree upon the applicable financial conditions.
Your monthly payment
3.323 € *
For 30 years (360 payments)
* Provisional, subject to study and offer from CaixaBank
Property price:
975.000 €
Taxes and Fees:
60.997 €
Total property cost:
1.035.997 €
Savings contributed:
195.000 €
Mortgage amount:
840.997 €
Total Interest:
355.267 €
Total cost with mortgage
1.391.264 €
Principal + interest + taxes and fees
Are you already looking for finance?
We help you find the option that best suits you.
Service offered by
Fotocasa does not act as a financial intermediary. The information provided is for guidance only, based on publicly available market information. The credit institution will contact the potential borrower to negotiate, facilitate, and agree upon the applicable financial conditions.
Choose the Fiber that best suits you.
Save 30% on a 5-star service.
Please let us know about it so we can correct it.