Connect your home
Choose the Fiber that best suits you.
Mijas
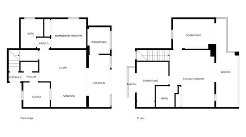
Casa pareada de dos plantas en Calahonda (Mijas), dividida en dos apartamentos independientes, ideal tanto para residencia como para inversión. La propiedad cuenta con un total de 4 habitaciones, 2 baños, 2 salones y 2 cocinas, ofreciendo versatilidad y un alto potencial de rentabilidad, con un ROI estimado del 7% anual.
En la planta baja, el apartamento dispone de un amplio jardín privado y terraza, proporcionando una excelente zona exterior para disfrutar del clima mediterráneo.
La planta superior ofrece un segundo apartamento con una gran terraza con vistas al mar, aportando luminosidad y un atractivo especial para alquiler vacacional o larga temporada.
La vivienda forma parte de una urbanización con parking comunitario, jardines y piscina comunitaria, lo que añade comodidad y valor al conjunto. Su ubicación es estratégica: junto a un campo de golf, cerca de la autopista AP-7 y con parada de autobús junto al complejo, facilitando la conexión con Mijas, Marbella y el resto de la Costa del Sol.
La propiedad requiere renovación, lo que permite adaptarla al gusto del comprador o potenciar aún más su rendimiento como inversión.
Una oportunidad única en una de las zonas más demandadas de Calahonda.
Typology
Energy consumption
Emissions
Interest type
Estimated monthly payment
1.538 € *
* Provisional, subject to study and offer from CaixaBank
Are you already looking for finance?
We help you find the option that best suits you.
Service offered by
Fotocasa does not act as a financial intermediary. The information provided is for guidance only, based on publicly available market information. The credit institution will contact the potential borrower to negotiate, facilitate, and agree upon the applicable financial conditions.
Your monthly payment
1.538 € *
For 30 years (360 payments)
* Provisional, subject to study and offer from CaixaBank
Property price:
450.000 €
Taxes and Fees:
29.347 €
Total property cost:
479.347 €
Savings contributed:
90.000 €
Mortgage amount:
389.347 €
Total Interest:
164.474 €
Total cost with mortgage
643.821 €
Principal + interest + taxes and fees
Are you already looking for finance?
We help you find the option that best suits you.
Service offered by
Fotocasa does not act as a financial intermediary. The information provided is for guidance only, based on publicly available market information. The credit institution will contact the potential borrower to negotiate, facilitate, and agree upon the applicable financial conditions.
Choose the Fiber that best suits you.
Save 30% on a 5-star service.
Please let us know about it so we can correct it.