Connect your home
Choose the Fiber that best suits you.
Rivas-Vaciamadrid
TECNOCASA RIVAS Chalet de 4 dormitorios con jardín, buhardilla, placas solares y sótano trastero en Rivas
Este chalet es perfecto para quienes quieren dar el paso de un piso a una vivienda con más espacio, comodidad y eficiencia. Una casa diseñada para familias jóvenes que buscan crecer en un entorno tranquilo y moderno.
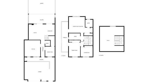
Distribución
Planta baja
Salón–comedor amplio y luminoso, con salida directa al porche acristalado y al jardín privado.
Cocina independiente, actual y funcional, con espacio office.
Dormitorio en planta baja, ideal como despacho, invitados o sala de juegos.
Baño de cortesía con plato de ducha.
Primera planta
Dormitorio principal en suite, con baño completo (bañera) y acceso a terraza privada.
Dos dormitorios adicionales con armarios empotrados.
Baño completo con ducha.
Buhardilla
Espacio diáfano con luz natural, perfecto como sala de ocio, gimnasio o despacho.
Calidades
Suelos porcelánicos en planta baja y tarima flotante en dormitorios y buhardilla.
Carpintería lacada en blanco y ventanas con doble acristalamiento Climalit.
Calefacción individual por gas natural.
Baños de diseño con mamparas de cristal y acabados de calidad.
Exterior y extras
Porche acristalado conectado al jardín, utilizable todo el año.
Porche cubierto delantero, ventilado y diseñado para evitar acumulación de calor.
Sótano trastero de unos 50 m², perfecto para almacenaje o como espacio auxiliar.
Jardín privado con césped artificial de bajo mantenimiento.
Garaje privado con acceso directo a la vivienda.
9 placas solares de autoconsumo (4,1 kW) que garantizan eficiencia y ahorro.
Instalación preparada para coche eléctrico.
Ubicación
Situado en una zona residencial muy demandada de Rivas, con colegios, parques y todo tipo de servicios cerca. Excelente comunicación por carretera y transporte público.
Una vivienda moderna, eficiente y con espacio para todo lo que tu familia necesita.
CONFIA EN EL VERDE, NO DUDES EN COMPARAR CONDICIONES HPOTECARIAS CON NUESTRO DEPARTAMENTO FINANCIERO KIRON, FINANCIACION HASTA EL 100%
30 AÑOS CUMPLIENDO SUEÑOS
Para mas información o para concertar una visita, CONTACTANOS!
Property type
Availability
Heating
Age
Lift
Furnished
Energy
Emissions
Interest type
Estimated monthly payment
2.321 €
Are you already looking for finance?
We help you find the option that best suits you.
Fotocasa does not act as a financial intermediary. The information provided is for guidance only, based on publicly available market information. The credit institution will contact the potential borrower to negotiate, facilitate, and agree upon the applicable financial conditions.
Your monthly payment
2.321 € *
For 30 years (360 payments)
* Provisional, subject to study and offer from CaixaBank
Property price:
680.000 €
Taxes and Fees:
43.297 €
Total property cost:
723.297 €
Savings contributed:
136.000 €
Mortgage amount:
587.297 €
Total Interest:
248.095 €
Total cost with mortgage
971.392 €
Principal + interest + taxes and fees
Are you already looking for finance?
We help you find the option that best suits you.
Fotocasa does not act as a financial intermediary. The information provided is for guidance only, based on publicly available market information. The credit institution will contact the potential borrower to negotiate, facilitate, and agree upon the applicable financial conditions.
Choose the Fiber that best suits you.
Save 30% on a 5-star service.
Please let us know about it so we can correct it.