Connect your home
Choose the Fiber that best suits you.
Sabadell
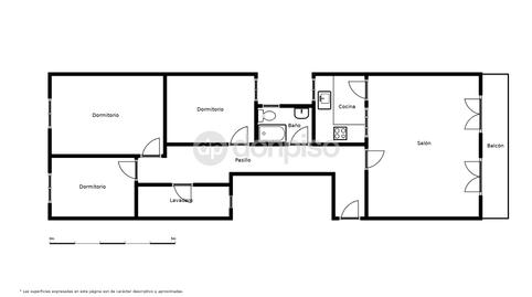
Junto a la Plaza de la Creu de Barberà. Esta es la oportunidad que estabas esperando para convertirte en propietario de un amplio y acogedor piso en una de las zonas más cotizadas de Sabadell. Con una orientación oeste que garantiza una excelente luz natural durante todo el día, este inmueble de 85 m² destaca por una distribución funcional que aprovecha al máximo cada espacio.
La vivienda cuenta con tres habitaciones, una doble y dos individuales, perfectas para adaptarse a las necesidades de tu familia o crear tu propio espacio de trabajo o descanso. El salón-comedor, amplio y luminoso, invita a disfrutar de momentos agradables junto a tus seres queridos. La cocina, práctica y bien equipada, ofrece todo lo necesario para tu día a día, mientras que el baño, de estilo contemporáneo, combina comodidad y diseño. Un vestíbulo y un pasillo bien distribuidos aportan fluidez y armonía a la vivienda.
Uno de los encantos adicionales de este piso es su balcón de 3 metros, ideal para relajarte y disfrutar de las puestas de sol al final del día.
La finca, con solo 4 vecinos, garantiza un ambiente tranquilo y agradable. Ubicada en un edificio de tres plantas, la propiedad se encuentra en una altura cómoda que ofrece privacidad y confort. Además, dispone de un trastero dentro de la vivienda, un valor añadido muy práctico para el almacenamiento.
En cuanto a la ubicación, estarás junto a la Plaza de la Creu de Barberà, con excelente conectividad gracias a las cercanas paradas de autobús y la red de trenes de cercanías. La zona goza de una vida comunitaria vibrante, con mercados, colegios, parques, cafeterías y restaurantes que aportan comodidad y dinamismo a tu día a día.
No dejes pasar la oportunidad de visitar este magnífico piso que combina ubicación, luminosidad y confort.
¡Haz de este inmueble tu nuevo hogar en Creu de Barberà! ( El PVP indicado no incluye impuestos ni gastos de Escritura ).
PARA PROPIETARIOS:
1.¿Necesitas vender para comprar? donpiso puede comprar tu casa entregándote el 10% en 48 horas y el resto ante Notario.
2. ¿Problemas económicos? Te ayudamos entregándote una cantidad pactada cada mes mientras vendemos tu casa. Sin gastos de ningún tipo.
3. ¿Vendes un piso con hipoteca? mientras gestionamos la venta, te adelantamos la cuota mensual.
4. ¿Reformas? al mejor precio y te las financiamos dentro de la hipoteca.
5. ¿La mejor hipoteca? en donpiso la encuentras y con condiciones preferentes.
6. ¿Herencias y divorcios? te ayudamos y coordinamos todo.
Infórmate: 93 306 90 90 - quierovender@donpiso.com
Typology
Antiquity
Floor
Energy consumption
Emissions
Interest type
Estimated monthly payment
523 € *
* Provisional, subject to study and offer from CaixaBank
Are you already looking for finance?
We help you find the option that best suits you.
Service offered by
Fotocasa does not act as a financial intermediary. The information provided is for guidance only, based on publicly available market information. The credit institution will contact the potential borrower to negotiate, facilitate, and agree upon the applicable financial conditions.
Your monthly payment
523 € *
For 30 years (360 payments)
* Provisional, subject to study and offer from CaixaBank
Property price:
145.000 €
Taxes and Fees:
16.403 €
Total property cost:
161.403 €
Savings contributed:
29.000 €
Mortgage amount:
132.403 €
Total Interest:
55.932 €
Total cost with mortgage
217.335 €
Principal + interest + taxes and fees
Are you already looking for finance?
We help you find the option that best suits you.
Service offered by
Fotocasa does not act as a financial intermediary. The information provided is for guidance only, based on publicly available market information. The credit institution will contact the potential borrower to negotiate, facilitate, and agree upon the applicable financial conditions.
Choose the Fiber that best suits you.
Save 30% on a 5-star service.
Please let us know about it so we can correct it.