Connect your home
Choose the Fiber that best suits you.
Valencia Capital
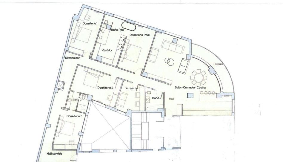
Lauria Inmobiliaria presenta Gran inmueble de 480 metros cuadrados, ubicado en un bonito edificio señorial de mediados de siglo XX completamente exterior.
Por su distribución en chaflán , disfruta de 10 ventanales y un gran balcón con unas amplias y despejadas vistas de la avenida del Oeste.
Se trata de dos inmuebles independientes de 280 y 209 metros cuadrados respectivamente.
Actualmente es una oficina y con posibilidad de transformarlo muy fácilmente en vivienda.
Reformado y con todas la instalaciones actualizadas, también carpintería interior, los suelos y los ventanales con aislamiento acústico y térmico.
Dispone de aire acondicionado canalizado por toda la casa y calefacción de gas natural por radiadores.
Es una propiedad única , con grandes espacios y una magnífica distribución que le proporciona gran luminosidad la mayor parte del día.
Inmejorablemente ubicada, en pleno centro de Valencia, a un paso de la Plaza del Ayuntamiento, del Mercado Central y la Plaza de la Reina.
Si busca vivir en el centro, en grandes espacios o necesita tener dos viviendas anejas y a su vez disfrutar de vistas despejadas, grandes espacios y mucha luminosidad, esta es su oportunidad. Contacte con nosotros.
Desde 1986 al servicio de nuestros clientes. Seriedad y confianza en tus gestiones inmobiliarias.
Typology
Orientation
Status
Antiquity
Floor
Elevator
Furnished
Energy consumption
Emissions
Interest type
Estimated monthly payment
4.602 € *
* Provisional, subject to study and offer from CaixaBank
Are you already looking for finance?
We help you find the option that best suits you.
Service offered by
Fotocasa does not act as a financial intermediary. The information provided is for guidance only, based on publicly available market information. The credit institution will contact the potential borrower to negotiate, facilitate, and agree upon the applicable financial conditions.
Your monthly payment
4.602 € *
For 30 years (360 payments)
* Provisional, subject to study and offer from CaixaBank
Property price:
1.290.000 €
Taxes and Fees:
132.785 €
Total property cost:
1.422.785 €
Savings contributed:
258.000 €
Mortgage amount:
1.164.785 €
Total Interest:
492.046 €
Total cost with mortgage
1.914.831 €
Principal + interest + taxes and fees
Are you already looking for finance?
We help you find the option that best suits you.
Service offered by
Fotocasa does not act as a financial intermediary. The information provided is for guidance only, based on publicly available market information. The credit institution will contact the potential borrower to negotiate, facilitate, and agree upon the applicable financial conditions.
Choose the Fiber that best suits you.
Save 30% on a 5-star service.
Please let us know about it so we can correct it.