Connect your home
Choose the Fiber that best suits you.

Vigo
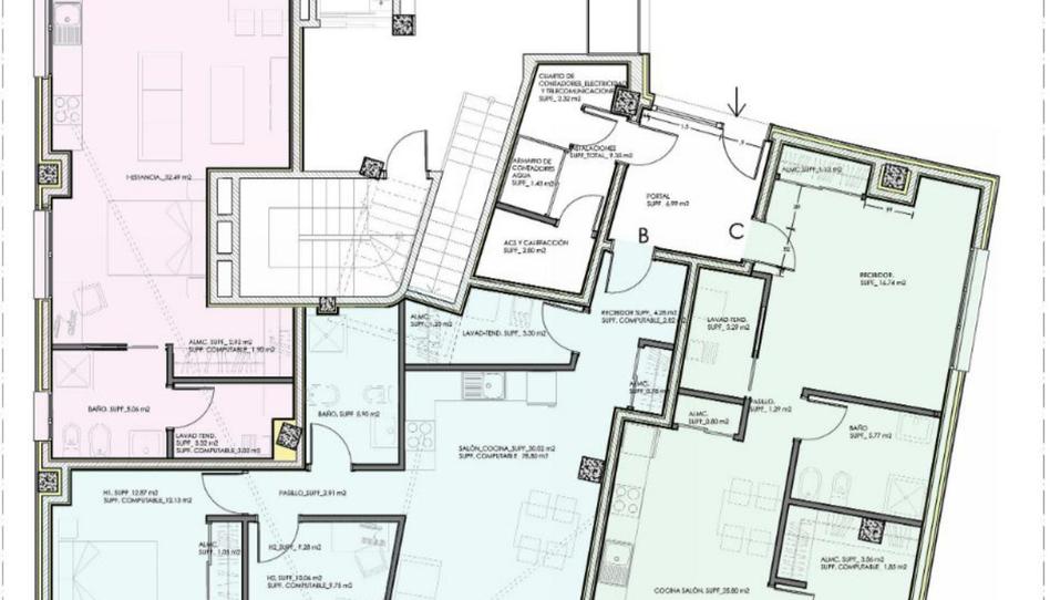
PROMOCION DE TRES VIVIENDAS NUEVAS EN BAJO DE EDIFICIO (DOS VIVIENDAS DE DOS HABITACIONES Y UNA VIVIENDA DE UNA HABITACIÓN). CALIFICACIÓN ENERGÉTICA A ( CLIMATICACIÓN AEROTERMIA , FACHADAS TRANSVENTILADAS Y CARPINTERÍA DE ALUMINIO CON ROTURA DE PUENTE TERMICO) .
Property type
Availability
Condition
Age
Lift
Furnished
Energy
Emissions
Interest type
Estimated monthly payment
773 € *
* Provisional, subject to study and offer from CaixaBank
Are you already looking for finance?
We help you find the option that best suits you.
Service offered by
Fotocasa does not act as a financial intermediary. The information provided is for guidance only, based on publicly available market information. The credit institution will contact the potential borrower to negotiate, facilitate, and agree upon the applicable financial conditions.
Your monthly payment
773 € *
For 30 years (360 payments)
* Provisional, subject to study and offer from CaixaBank
Property price:
220.000 €
Taxes and Fees:
19.596 €
Total property cost:
239.596 €
Savings contributed:
44.000 €
Mortgage amount:
195.596 €
Total Interest:
82.627 €
Total cost with mortgage
322.223 €
Principal + interest + taxes and fees
Are you already looking for finance?
We help you find the option that best suits you.
Service offered by
Fotocasa does not act as a financial intermediary. The information provided is for guidance only, based on publicly available market information. The credit institution will contact the potential borrower to negotiate, facilitate, and agree upon the applicable financial conditions.
Choose the Fiber that best suits you.
Save 30% on a 5-star service.
Please let us know about it so we can correct it.