Connect your home
Choose the Fiber that best suits you.
Vigo
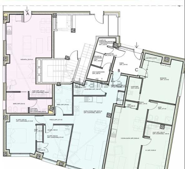
APARTAMENTO NUEVO, entrega julio-agosto 2026, 2 dormitorios, salón, cocina amueblada y equipada, baño, AGUA CALIENTE Y CALEFACCIÓN POR AEROTERMIA, suelo radiante, calidades superiores, GARAJE OPCIONAL 20mil euros más.
OPORTUNIDAD.
CALIDADES
FACHADAS: El revestimiento exterior consistirá en un cerámico tras ventilado que, además de un
elegante acabado que integra la fachada con el resto del edificio, favorece un aislamiento
térmico de alta calidad en el interior que con la combinación de otros materiales dará como
resultado una vivienda con las más altas prestaciones en cuanto a eficiencia energética
(A++).
El revestimiento interior consistirá en aislamiento térmico más un tabique de ladrillo
perforado de ½ pie de espesor, trasdosado autoportante formado por dos placas de cartónyeso
con aislamiento interpuesto.
TABIQUERÍA: Separación entre viviendas: Fábrica de ladrillo y doble trasdosado autoportante de placa de
yeso laminado con aislamiento para reducir la transmisión acústica entre viviendas
Tabiquería interior: Doble placa de yeso laminado sobre estructura metálica con
aislamiento acústico intermedio, excepto en cocinas , que se realizará con tabiquería de
ladrillo
SOLADOS, ALICATADOS Y ACABADOS: Suelos
Gres porcelánico de primera calidad en baños.
Pavimento flotante vinílico en el resto de la vivienda.
Paredes
Alicatado con azulejo cerámico de primera calidad en baños
Pintura plástica lisa en el resto de la vivienda. Falso techo de placas de yeso laminado en toda la vivienda, acabado en pintura plástica lisa.
Falso techo de placa de yeso laminado en cocinas y baños (registrable de lamas de aluminio en uno de ellos).
CARPINTERÍA EXTERIOR: Carpintería de PVC, vidrios con cámara de gas argón y hoja interior bajo emisiva que reduce la transmisión de frío/calor entre el exterior y el interior de la vivienda.
El acristalamiento de las ventanas estará compuesto por dos vidrios tipo Climalit con una cámara de aire intermedia , que además del aislamiento térmico favorecen mayor aislamiento acústico al ruido exterior asegurando un buen confort en el interior de la Vivienda.
CARPINTERÍA INTERIOR
La puerta de entrada a la vivienda será de seguridad, con cerradura de seguridad, pomo exterior cromado y mirilla. En el caso de la vivienda A la puerta será de PVC y la de las viviendas B y C de madera.
Las puertas de paso en el interior de la vivienda serán de estructura maciza acabado laminado barnizado en roble de 70x30 cm con manillas de latón.
Los armarios son empotrados, modulares tipo monoblock , con puertas abatibles o correderas , según proyecto , barnizadas en roble.
INSTALACIONES
Electricidad y telecomunicaciones
Instalación eléctrica acorde al Reglamento de Baja Tensión
Toma de teléfono, TV y registro de toma para los servicios de telecomunicaciones por cable en salón, cocina y todos los dormitorios de acuerdo al Reglamento de Telecomunicaciones vigente.
Control de acceso mediante videoportero (viviendas B y C).
Luminarias en la vivienda tipo led para garantizar luminosidad y ahorro en el consumo.
Climatización y agua caliente
Sistema individual de aerotermia para producción de calefacción y agua caliente
sanitaria.
Suelo radiante y refrescante.
Sistema de encendido de calefacción por control remoto.
La instalación de fontanería se realizará convenientemente aislada para reducir las pérdidas de energía. Se colocarán llaves de corte en la entrada de la vivienda , en cada baño y en la cocina.
Fontanería y aparatos sanitarios
Grifería monomando, acabado cromado o negro mate de gama media a elegir, termostáticas en duchas.
Inodoro compacto Roca.
Bidé compacto Roca.
Platos de ducha Roca con mampara
Mueble de lavabo con espejo retroiluminado.
COCINAS
Cocina totalmente amueblada, con muebles altos y bajos, según tipologías de vivienda,
encimera y frente en material porcelánico
Electrodomésticos Balay o similar: Placa de inducción y campana extractora. Horno, microondas y frigorífico, de la serie cristal, color blanco o negro. Lavadora y lavavajillas
integrados en mueble de cocina.
ZAGUÁN VIVIENDAS 1 Y 2
Solado de gres de primera calidad en rellanos y tabiquería en ladrillo .
Iluminación Led.
Portal en PVC.
Property type
Availability
Hot water
Heating
Condition
Age
Floor
Lift
Furnished
Energy
Emissions
Interest type
Estimated monthly payment
738 € *
* Provisional, subject to study and offer from CaixaBank
Are you already looking for finance?
We help you find the option that best suits you.
Service offered by
Fotocasa does not act as a financial intermediary. The information provided is for guidance only, based on publicly available market information. The credit institution will contact the potential borrower to negotiate, facilitate, and agree upon the applicable financial conditions.
Your monthly payment
738 € *
For 30 years (360 payments)
* Provisional, subject to study and offer from CaixaBank
Property price:
210.000 €
Taxes and Fees:
18.796 €
Total property cost:
228.796 €
Savings contributed:
42.000 €
Mortgage amount:
186.796 €
Total Interest:
78.909 €
Total cost with mortgage
307.705 €
Principal + interest + taxes and fees
Are you already looking for finance?
We help you find the option that best suits you.
Service offered by
Fotocasa does not act as a financial intermediary. The information provided is for guidance only, based on publicly available market information. The credit institution will contact the potential borrower to negotiate, facilitate, and agree upon the applicable financial conditions.
Choose the Fiber that best suits you.
Save 30% on a 5-star service.
Please let us know about it so we can correct it.