Connect your home
Choose the Fiber that best suits you.
Vila-real
En el tranquilo barrio de San Pascual, en Vila-real, se encuentra esta vivienda que destaca por una característica poco habitual: acceso desde dos calles, lo que amplía notablemente sus posibilidades de uso y distribución. La propiedad se presenta como una excelente oportunidad para quienes desean crear un hogar a medida o desarrollar un proyecto con visión de futuro.
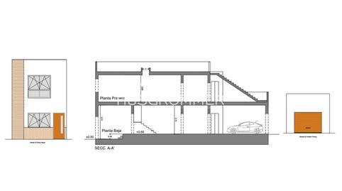
La casa se encuentra actualmente en fase inicial de reforma, con una base ya avanzada que permite continuar las obras con garantías. Entre los trabajos ya realizados se incluyen la nueva tabiquería, la renovación completa del sistema de desagües, el refuerzo y sustitución de vigas y la rehabilitación integral de la cubierta, actuaciones clave que aportan seguridad estructural y valor añadido.
Además, la vivienda dispone de proyecto arquitectónico y licencia de obra en vigor, lo que permite retomar los trabajos de inmediato, sin necesidad de trámites adicionales ni tiempos de espera administrativos.
La propuesta de distribución contempla una planta baja con entrada principal, una habitación, cocina, sala de estar, baño completo y un amplio patio trasero con acceso directo por la segunda calle, que también puede destinarse a zona de aparcamiento. En la planta superior, el proyecto prevé tres habitaciones y salida directa a una terraza, un espacio exterior privado ideal para el día a día.
Ubicada en una zona residencial tranquila, pero bien conectada y próxima a colegios, comercios y servicios esenciales, esta vivienda es ideal tanto como proyecto personal o familiar como opción de inversión, con la ventaja de partir de una estructura ya actualizada.
Una propiedad con carácter, potencial y una base sólida para dar forma a un proyecto a medida en Vila-real.
Property type
Availability
Age
Lift
Furnished
Energy
Emissions
Interest type
Estimated monthly payment
381 € *
* Provisional, subject to study and offer from CaixaBank
Are you already looking for finance?
We help you find the option that best suits you.
Service offered by
Fotocasa does not act as a financial intermediary. The information provided is for guidance only, based on publicly available market information. The credit institution will contact the potential borrower to negotiate, facilitate, and agree upon the applicable financial conditions.
Your monthly payment
381 € *
For 30 years (360 payments)
* Provisional, subject to study and offer from CaixaBank
Property price:
110.000 €
Taxes and Fees:
8.503 €
Total property cost:
118.503 €
Savings contributed:
22.000 €
Mortgage amount:
96.503 €
Total Interest:
40.766 €
Total cost with mortgage
159.269 €
Principal + interest + taxes and fees
Are you already looking for finance?
We help you find the option that best suits you.
Service offered by
Fotocasa does not act as a financial intermediary. The information provided is for guidance only, based on publicly available market information. The credit institution will contact the potential borrower to negotiate, facilitate, and agree upon the applicable financial conditions.
Choose the Fiber that best suits you.
Save 30% on a 5-star service.
Please let us know about it so we can correct it.