- new
- Top+
Flat with elevator in De Vallehermoso, Arapiles
- 4 rooms ·
- 4 bath ·
- 170 m² ·
- 1st floor ·
- Elevator ·
- Heating ·
- Air conditioning ·
- new
- Top+
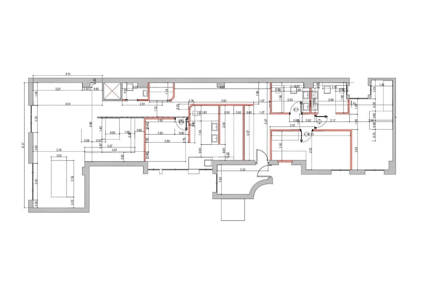
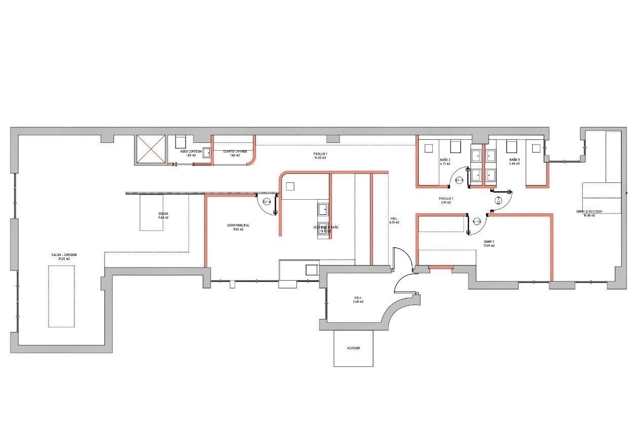
DIZA consultores les presenta esta oportunidad para invertir. En la primera planta de un edificio construido a mediados del siglo XX, se encuentra esta vivienda para reformar de 170 metros cuadrados. La vivienda se encuentra para reforma total, demolida, con múltiples posibilidades. Cuenta con dos grandes ventanales exteriores de orientación oeste y puerta de servicio independiente. Las fotografías corresponden a tres planos con tres propuestas de reforma distintas. La finca, señorial, cuenta con ascensor y portero en horario comercial. Chamberí es una de las zonas más lujosas y con mejor calidad de vida de Europa. Gracias a la amplia oferta gastronómica, cultural y comercial, se trata de una formidable zona donde vivir e invertir. Estaremos encantados de atenderle. DIZA Consultores Inmobiliarios Inmobiliaria de lujo en Madrid especializada en comprar, vender y alquilar pisos en las zonas premium de Madrid: Barrio de Salamanca, Almagro, Chamartín, Retiro, Pozuelo, Aravaca, Boadilla. Convertimos Sueños en Hogares
