- More than 3 months
- Top+
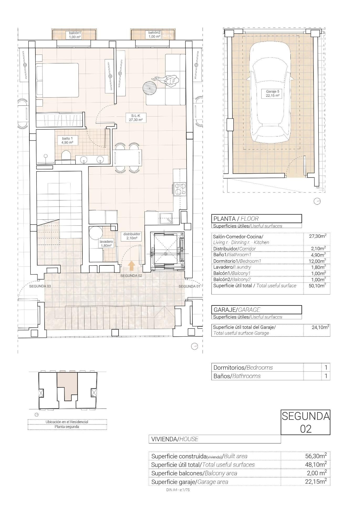
Flat with terrace in Hondón de las Nieves / El Fondó de les Neus
- 2 rooms·
- 1 bath·
- 90 m²·
- 2nd floor·
- Elevator·
- Parking·
- Terrace·
- More than 3 months
- Top+
Descubre este magnífico piso ubicado en el encantador pueblo de Hondon de las Nieves, una zona tranquila que combina la comodidad del entorno urbano con la belleza natural. Con una superficie construida de 90 m2 y útil de 80 m2, esta propiedad cuenta con dos habitaciones dobles equipadas con armarios empotrados, ofreciendo amplios espacios ideales para familias o parejas. El salón luminoso se conecta directamente con un balcón donde podrás disfrutar vistas despejadas. La cocina está completamente equipada y tiene una superficie ideal para preparar tus platillos favoritos. El baño principal incluye bañera, proporcionando confort adicional al hogar. Además, destaca por su conservación excelente; es entrar a vivir sin necesidad inmediata de reformas ni cambios significativos. Entre los extras incluidos encontramos: puerta blindada que garantiza seguridad personalizada y trastero perfecto para almacenamiento extra; así como barbacoa perfecta para disfrutarlas junto familiares o amigos durante esas tardes soleadas. La existencia del ascensor facilita el acceso desde cualquier planta mientras que su orientación exterior asegura abundante luz natural durante todo el día.. En términos logísticos hay disponibles autobuses cercanos e instituciones educativas dentro del área lo cual agrega valor añadido tanto si buscas inversión como tu nuevo hogar permanente.- ¡No pierdas oportunidad! Contáctenos hoy mismo. PRECIO: 118.000€ GRAN OPORTUNIDAD !
