- new
- Top+
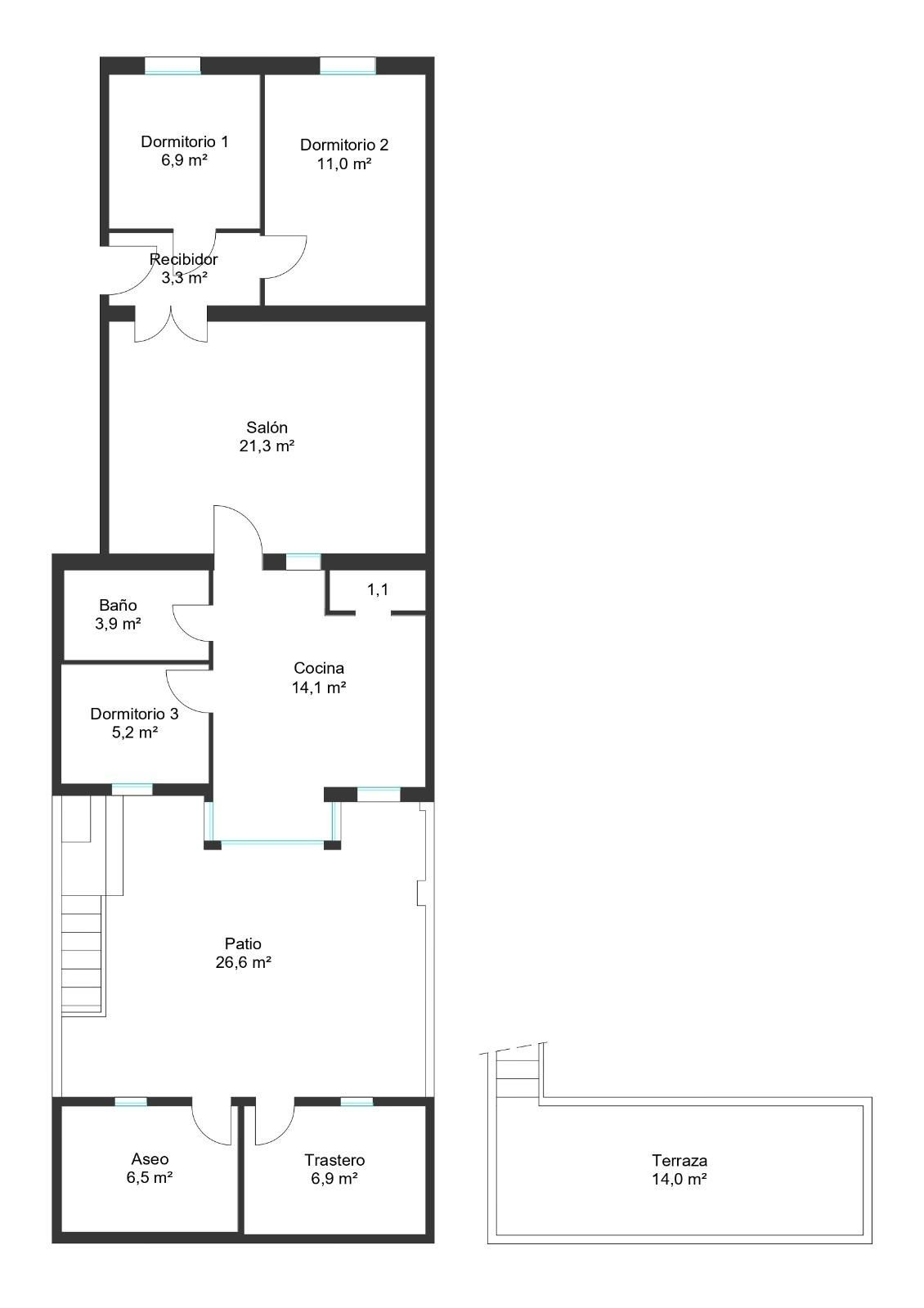
Planta baja with terrace in Carrer OSCA, Son Fortesa
- 3 rooms ·
- 1 bath ·
- 76 m² ·
- ground ·
- Terrace ·
- Heating ·
- Air conditioning ·
- Storage room ·
- new
- Top+
PALMA- SON FORTEZA - CALLE OSCA. ¿Buscas una vivienda pero te da pereza hacer reformas? ¡¡Es tu oportunidad!! Se vende bonita planta baja de 76 m2 ¡para entrar a vivir! Consta de 3 habitaciones, 1 baño completo con bañera, cocina amueblada e independiente con práctica despensa y salón comedor con aire acondicionado frío- calor. Desde la cocina tenemos acceso a un fantástico patio interior que nos da acceso una estancia que se puede aprovechar como trastero, sala de juegos, zona de estudio, etc y otra habitación que a día de hoy se emplea como zona de coladuría y aseo exterior. Desde el mismo patio, mediante unas escaleras, tenemos acceso a una terraza tipo solarium Entre otras calidades, la propiedad posee solados de gres rústico, aire acondicionado frío- calor en el recibidor, termo de butano, carpintería interior de madera y exterior de aluminio con climalit. La finca es tranquila ya que tiene pocos vecinos ¡y lo mejor es que no hay gastos comunitarios! Todos los contadores son individuales, brindándote total independencia sobre tus suministros. Precio: 360.000 euros.