Flat in Calle Monasterio de San Juan de la Peña, 1, Cuarte de Huerva
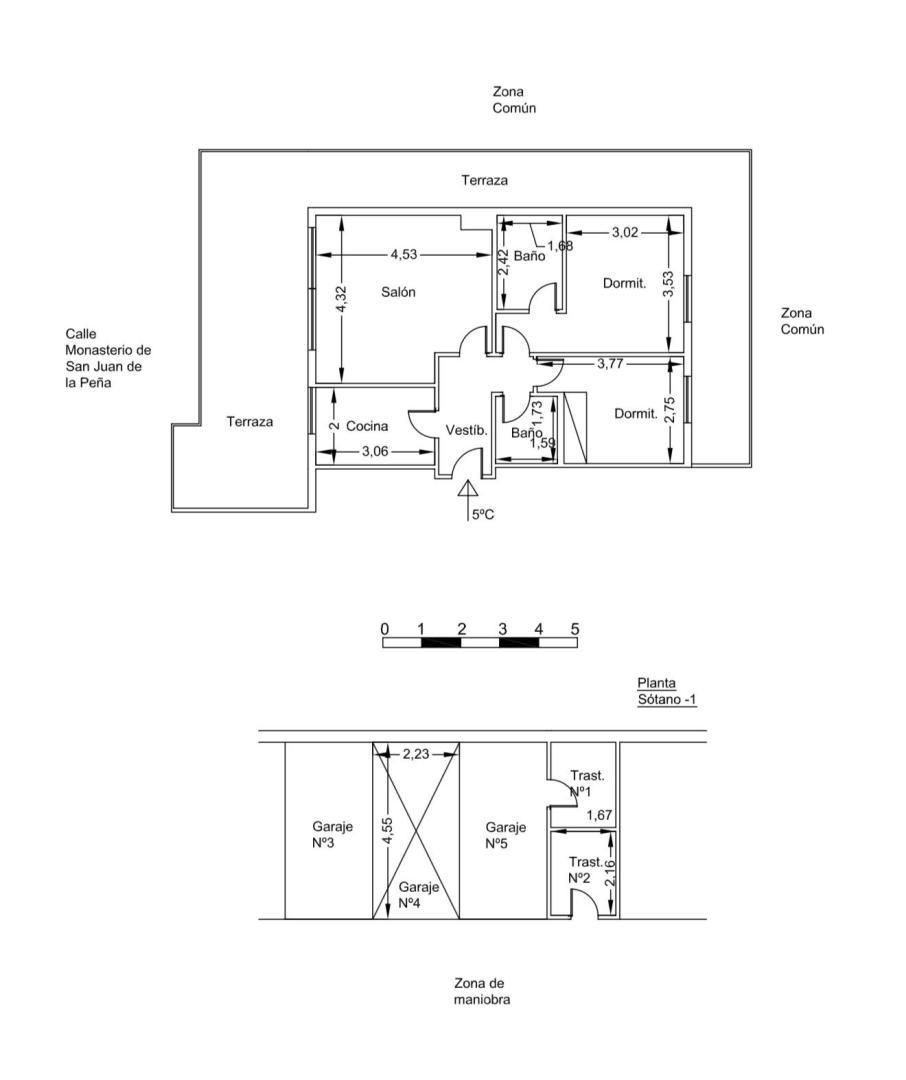
PRECIOSO ÁTICO EN VENTA, incluye GARAJE Y TRASTERO en el corazón de Cuarte de Huerva … Te presentamos un encantador ático que combina comodidad, luz natural creando un ambiente cálido y acogedor y un estilo de vida privilegiado. La vivienda consta de 120 metros construidos de los cuales 60 metros corresponden a la vivienda, distribuidos en salón, dos habitaciones (la principal tipo suite), cocina y dos baños y los restantes 60 metros corresponden a terrazas, rincones perfectos para desayunar al sol, relajarte al atardecer o compartir momentos especiales con familia y amigos sin salir de casa. Incluye plaza de garaje y trastero y acceso a la piscina de la urbanización de enfrente. Situado en el centro de Cuarte de Huerva, con todos los servicios a tu alcance, una ubicación que te permite disfrutar de la tranquilidad de un entorno residencial a tan solo 10 minutos de la ciudad. Vive en un ático donde cada día se siente especial!!!! PERFECTO COMO INVERSIÓN, nada igual en este momento en Cuarte… Anuncio profesional, abstenerse agencias !
- 2 rooms ·
- 1 bath ·
- 120 m² ·
- Elevator
