330.000 €
Flat in Calle Carlos Benítez Saurel, 8, Entrenúcleos
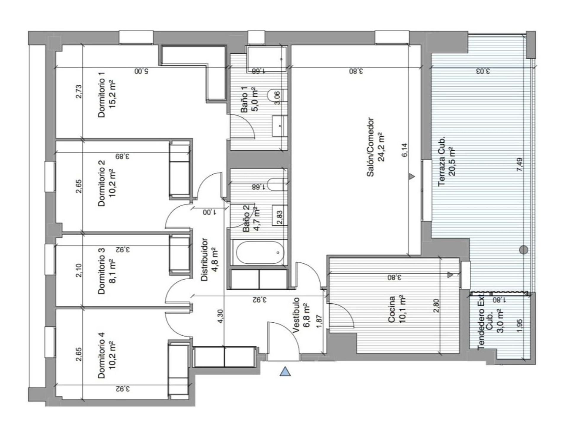
Piso a estrenar en una segunda planta con una amplia terraza con vistas al parque forestal Dehesa Doña María. Orientación sur-norte con ventilación cruzada. Cocina amueblada con placa de inducción, horno y campana extractora. Terraza lavadero con termo de ACS mediante aerotermia. Amplios armarios empotrados en dormitorios y recibidor. Aire acondicionado-calefacción centralizado. Urbanización privada con piscinas, pista de pádel, zona de juegos infantiles y club social. Trastero y plaza de garaje en sótano.
- 4 rooms ·
- 2 bath ·
- 152 m² ·
- Elevator
Private real estate
