Connect your home
Choose the Fiber that best suits you.
Barcelona Capital
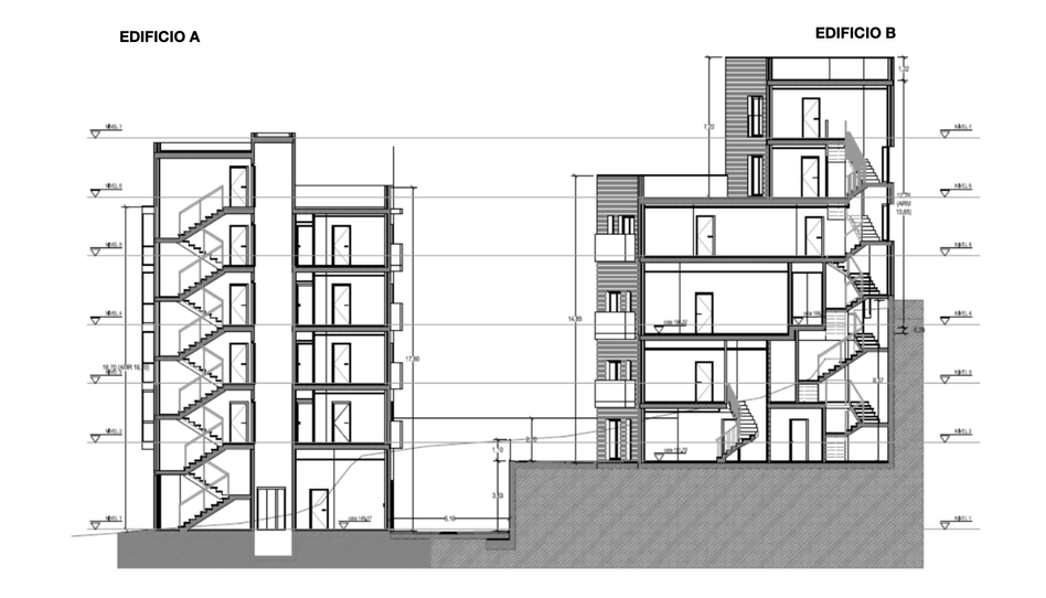
OWN te presenta esta oportunidad de adquirir este proyecto ejecutivo con licencia para edificar dos edificios con un total de 7 pisos.
Con 203m² de parcela y un total de 495m² de techo según proyecto actual con licencia.
2 EDIFICIOS OBRA NUEVA
1 TRIPLEX CON TERRAZA
2 DUPLEX CON TERRAZA
4 PISOS
EDIFICIO A:
Superficie construida total 413m²
PB Dúplex con jardín, 99m² + 32,50m²
P1-P2-P3 Planta Tipo 57m²
EDIFICIO B:
Superficie construida total 363m².
Dúplex con jardín, 74m² + 32m²
PB 48m²
Triplex con terrazas, 127m² + 31m²
Proyecto ejecutivo y licencia incluidos en el precio.
No dudes en contactarnos para ampliar información.
OWN HOMES +34/699 600 405. own@deboraescoda.com [IW]
Typology
Interest type
Estimated monthly payment
2.499 € *
* Provisional, subject to study and offer from CaixaBank
Are you already looking for finance?
We help you find the option that best suits you.
Service offered by
Fotocasa does not act as a financial intermediary. The information provided is for guidance only, based on publicly available market information. The credit institution will contact the potential borrower to negotiate, facilitate, and agree upon the applicable financial conditions.
Your monthly payment
2.499 € *
For 30 years (360 payments)
* Provisional, subject to study and offer from CaixaBank
Property price:
700.000 €
Taxes and Fees:
72.497 €
Total property cost:
772.497 €
Savings contributed:
140.000 €
Mortgage amount:
632.497 €
Total Interest:
267.189 €
Total cost with mortgage
1.039.686 €
Principal + interest + taxes and fees
Are you already looking for finance?
We help you find the option that best suits you.
Service offered by
Fotocasa does not act as a financial intermediary. The information provided is for guidance only, based on publicly available market information. The credit institution will contact the potential borrower to negotiate, facilitate, and agree upon the applicable financial conditions.
Choose the Fiber that best suits you.
Save 30% on a 5-star service.
Please let us know about it so we can correct it.