Connect your home
Choose the Fiber that best suits you.
Lloret de Mar
Terreno con proyecto en venta en Urcassa – Cala Canyelles, Lloret de Mar
¡Oportunidad exclusiva para inversores y particulares que desean construir una villa de lujo con vistas al mar!
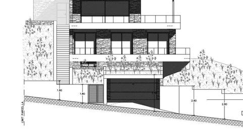
Este terreno de 789,94 m2, ubicado en una de las zonas más exclusivas de Lloret de Mar, ofrece la posibilidad de construir una vivienda unifamiliar de alto standing. Incluye un proyecto arquitectónico completamente desarrollado, lo que supone un ahorro significativo en costes de arquitecto y aparejador, ya que solo es necesario visar el proyecto y tramitar la licencia de obra. Además, el terreno ya contó con una licencia en el pasado, lo que facilita su aprobación sin largos tiempos de espera.
Características del proyecto
📍 Superficie del terreno: 789,94 m2
🏠 Tipología de construcción: Vivienda unifamiliar aislada
📏 Distribución del proyecto:
Planta sótano: Garaje con capacidad para varios vehículos, trastero y accesos.
Planta baja: Tres dormitorios, baños completos y amplias zonas exteriores con porche.
Planta primera: Espacio diáfano de salón-comedor-cocina, un dormitorio adicional con baño privado y grandes terrazas con vistas panorámicas.
Zona exterior: Jardín privado y espacio para piscina.
Ubicación privilegiada
🌊 Vistas al mar y la montaña desde varias estancias de la casa.
🏖 A solo 5 minutos de la playa de Cala Canyelles, una de las más hermosas de la Costa Brava.
🚗 Acceso rápido a servicios y comercios de Lloret de Mar, así como a las principales vías de comunicación con Barcelona y Girona.
Ventajas de este terreno
✔ Proyecto ya realizado, solo falta tramitar la licencia → ahorro de tiempo y costes.
✔ Sin costes de demolición → terreno limpio y listo para construir.
✔ Ideal tanto para inversión como para construir la casa de tus sueños.
📩 ¡Contáctanos para más información y descubre todos los detalles de este exclusivo proyecto!
Property type
Interest type
Estimated monthly payment
701 € *
* Provisional, subject to study and offer from CaixaBank
Are you already looking for finance?
We help you find the option that best suits you.
Service offered by
Fotocasa does not act as a financial intermediary. The information provided is for guidance only, based on publicly available market information. The credit institution will contact the potential borrower to negotiate, facilitate, and agree upon the applicable financial conditions.
Your monthly payment
701 € *
For 30 years (360 payments)
* Provisional, subject to study and offer from CaixaBank
Property price:
195.000 €
Taxes and Fees:
21.496 €
Total property cost:
216.496 €
Savings contributed:
39.000 €
Mortgage amount:
177.496 €
Total Interest:
74.981 €
Total cost with mortgage
291.477 €
Principal + interest + taxes and fees
Are you already looking for finance?
We help you find the option that best suits you.
Service offered by
Fotocasa does not act as a financial intermediary. The information provided is for guidance only, based on publicly available market information. The credit institution will contact the potential borrower to negotiate, facilitate, and agree upon the applicable financial conditions.
Choose the Fiber that best suits you.
Get electricity and gas online, no contract required
Please let us know about it so we can correct it.