Connect your home
Choose the Fiber that best suits you.
Mairena del Aljarafe
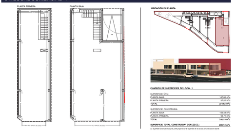
Solar de 715m2, sobre el que se proyecta un edificio compacto y funcional, con una planta sótano de garaje con 16 plazas de aparcamiento, planta baja, primera y de cubierta.
El proyecto cuenta con un total de 5 locales comerciales distribuidos en las dos plantas del edifico. Tres de ellos tienen dos alturas mientras que uno situado en planta baja, y otro situado en planta primera se desarrollan por completo en una planta. Además, para 3 de estos locales existe la posibilidad de explotar la gran cubierta con la que cuenta el edificio.
El edificio, que se retranquea 3 metros de los linderos de la parcela ofrece al público un ensanche del acerado que permite al peatón un acceso cómodo desde la calle, todo ello con la presencia de elementos de vegetación que generan una
aumento de las condiciones de confort del entorno.
El proyecto cuenta con licencia , concedida con fecha 09/01/2024 por Excmo. Ayuntamiento de Mairena del Aljarafe.
Ubicado en la emblemática Glorieta de los Descubrimientos, una de las zonas más dinámicas y concurridas de Mairena del Aljarafe.
Typology
Interest type
Estimated monthly payment
5.171 € *
* Provisional, subject to study and offer from CaixaBank
Are you already looking for finance?
We help you find the option that best suits you.
Service offered by
Fotocasa does not act as a financial intermediary. The information provided is for guidance only, based on publicly available market information. The credit institution will contact the potential borrower to negotiate, facilitate, and agree upon the applicable financial conditions.
Your monthly payment
5.171 € *
For 30 years (360 payments)
* Provisional, subject to study and offer from CaixaBank
Property price:
1.500.000 €
Taxes and Fees:
108.785 €
Total property cost:
1.608.785 €
Savings contributed:
300.000 €
Mortgage amount:
1.308.785 €
Total Interest:
552.877 €
Total cost with mortgage
2.161.662 €
Principal + interest + taxes and fees
Are you already looking for finance?
We help you find the option that best suits you.
Service offered by
Fotocasa does not act as a financial intermediary. The information provided is for guidance only, based on publicly available market information. The credit institution will contact the potential borrower to negotiate, facilitate, and agree upon the applicable financial conditions.
Choose the Fiber that best suits you.
Save 30% on a 5-star service.
Please let us know about it so we can correct it.