Connect your home
Choose the Fiber that best suits you.
Rubí
Solar con 104 m2 de superficie de parcela plana, en zona céntrica de Rubí. ¡Ideal para familias que buscan un proyecto en un entorno con todas las comodidades que el centro ofrece!
Situada a pocos pasos del Mercado Municipal de Rubí y cinco minutos caminando la estación de FCGG, disfrutarás de la tranquilidad de la zona mientras te beneficias de la proximidad a calles comerciales.
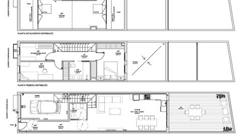
El solar permite edificar una vivienda adosada. Se vende con proyecto y se dispone de los visados y permisos listos para empezar a construir.
El proyecto de edificación de la casa consta de 163 m2 que se reparten como sigue. Disponemos de un salón-comedor integrado con la cocina de estilo americano de 33 m2 con salida al patio de 29 m2, dos baños con plato de ducha, tres dormitorios, dos de ellos dobles, el principal de matrimonio con acceso a la terraza de 18 m2. Además, dispone de una excelente buhardilla de 30m2 que puede ser la cuarta habitación o una sala polivalente. La vivienda también dispone de garaje para un coche.
Está muy bien ubicada, en pleno núcleo urbano con todos los servicios y comercios cercanos.
¡No dejes pasar esta oportunidad de crear el hogar de tus sueños en una buena ubicación!
Property type
Interest type
Estimated monthly payment
537 € *
* Provisional, subject to study and offer from CaixaBank
Are you already looking for finance?
We help you find the option that best suits you.
Service offered by
Fotocasa does not act as a financial intermediary. The information provided is for guidance only, based on publicly available market information. The credit institution will contact the potential borrower to negotiate, facilitate, and agree upon the applicable financial conditions.
Your monthly payment
537 € *
For 30 years (360 payments)
* Provisional, subject to study and offer from CaixaBank
Property price:
149.000 €
Taxes and Fees:
16.803 €
Total property cost:
165.803 €
Savings contributed:
29.800 €
Mortgage amount:
136.003 €
Total Interest:
57.452 €
Total cost with mortgage
223.255 €
Principal + interest + taxes and fees
Are you already looking for finance?
We help you find the option that best suits you.
Service offered by
Fotocasa does not act as a financial intermediary. The information provided is for guidance only, based on publicly available market information. The credit institution will contact the potential borrower to negotiate, facilitate, and agree upon the applicable financial conditions.
Choose the Fiber that best suits you.
Please let us know about it so we can correct it.