Connect your home
Choose the Fiber that best suits you.
Sant Adrià de Besòs
Oportunidad única de inversión en una de las zonas con mayor proyección turística del litoral de Barcelona. Sant Adrià de Besòs se encuentra en pleno auge, impulsado por la apertura de nuevos proyectos hoteleros, espacios culturales y la regeneración del frente marítimo.
A 3 Minutos a Pie de la Playa – Sant Adrià de Besòs
Se vende solar con licencia tramitada para la construcción de un hotel de 16 habitaciones, a tan solo tres minutos a pie de la playa.
Características principales del proyecto:
Hotel esquinero de PB + 3 plantas.
Superficie del solar: 175 m2.
Superficie total edificada prevista: 794 m2.
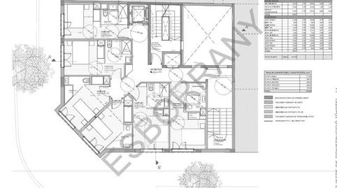
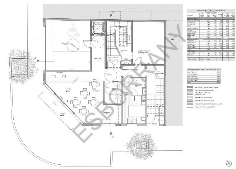
Distribución del futuro hotel
Planta baja: Hall y vestíbulo, Oficina, Baño, Consigna, 2 almacenes, 3 plazas de parking
Plantas 1, 2 y 3: 19 habitaciones dobles con baño, distribuidas en tres plantas, Ascensor, Escalera principal, Escalera de emergencia
Planta terrado: Terraza exterior, Espacio para instalaciones y residuos, Acceso por ascensor y escalera y Planta cubierta
Zona en transformación con nuevos proyectos residenciales, comerciales y hoteleros.
Una oportunidad ideal para promotores, operadores hoteleros o inversores que busquen un proyecto llave en mano en una ubicación emergente de alto potencial.
Property type
Interest type
Estimated monthly payment
4.638 € *
* Provisional, subject to study and offer from CaixaBank
Are you already looking for finance?
We help you find the option that best suits you.
Service offered by
Fotocasa does not act as a financial intermediary. The information provided is for guidance only, based on publicly available market information. The credit institution will contact the potential borrower to negotiate, facilitate, and agree upon the applicable financial conditions.
Your monthly payment
4.638 € *
For 30 years (360 payments)
* Provisional, subject to study and offer from CaixaBank
Property price:
1.300.000 €
Taxes and Fees:
133.785 €
Total property cost:
1.433.785 €
Savings contributed:
260.000 €
Mortgage amount:
1.173.785 €
Total Interest:
495.848 €
Total cost with mortgage
1.929.633 €
Principal + interest + taxes and fees
Are you already looking for finance?
We help you find the option that best suits you.
Service offered by
Fotocasa does not act as a financial intermediary. The information provided is for guidance only, based on publicly available market information. The credit institution will contact the potential borrower to negotiate, facilitate, and agree upon the applicable financial conditions.
Choose the Fiber that best suits you.
Get electricity and gas online, no contract required
Please let us know about it so we can correct it.