Connect your home
Choose the Fiber that best suits you.
Sant Feliu de Guíxols
¡Oportunidad para promotores! Solar en venta con proyecto básico en Sant Feliu de Guíxols
Se vende solar residencial de 240 m² en una excelente ubicación en Sant Feliu de Guíxols. Cuenta con un proyecto básico ya elaborado, listo para solicitar la licencia de obras.
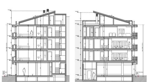
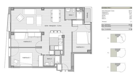
El proyecto contempla la construcción de 7 viviendas y 1 local comercial, distribuidos en planta baja más 3 alturas, lo que maximiza su potencial de rentabilidad.
Características destacadas:
- Superficie: 240 m²
- Edificabilidad: Planta baja + 3 alturas
- Uso residencial con local comercial
- Proyecto básico listo para licencia
- Ubicación estratégica en Sant Feliu de Guíxols
Para más información, no dude en consultarnos.
www.kuperrs.com
Property type
Interest type
Estimated monthly payment
1.253 € *
* Provisional, subject to study and offer from CaixaBank
Are you already looking for finance?
We help you find the option that best suits you.
Service offered by
Fotocasa does not act as a financial intermediary. The information provided is for guidance only, based on publicly available market information. The credit institution will contact the potential borrower to negotiate, facilitate, and agree upon the applicable financial conditions.
Your monthly payment
1.253 € *
For 30 years (360 payments)
* Provisional, subject to study and offer from CaixaBank
Property price:
350.000 €
Taxes and Fees:
37.199 €
Total property cost:
387.199 €
Savings contributed:
70.000 €
Mortgage amount:
317.199 €
Total Interest:
133.996 €
Total cost with mortgage
521.195 €
Principal + interest + taxes and fees
Are you already looking for finance?
We help you find the option that best suits you.
Service offered by
Fotocasa does not act as a financial intermediary. The information provided is for guidance only, based on publicly available market information. The credit institution will contact the potential borrower to negotiate, facilitate, and agree upon the applicable financial conditions.
Choose the Fiber that best suits you.
Get electricity and gas online, no contract required
Please let us know about it so we can correct it.