Connect your home
Choose the Fiber that best suits you.
Santa Cruz de Tenerife Capital
Marenostrum inmobiliaria ofrece en venta conjunta dos parcelas urbanas de 118 m² y 128 m² , situadas en una de las zonas residenciales más tranquilas y demandadas de Acorán.
Ambas se encuentran en una calle sin salida, lo que garantiza un entorno con tráfico prácticamente inexistente, máxima privacidad y un ambiente familiar y seguro, utilizado únicamente por los vecinos. Las parcelas disponen de proyecto y licencia de obra en vigor para la construcción de dos viviendas pareadas de 148,52 m² y 161,37 m² respectivamente, diseñadas con un enfoque moderno, funcional y orientado a la comodidad y la calidad de vida.
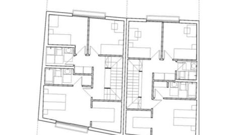
Las viviendas proyectadas se caracterizan por su amplitud, su luminosidad y una excelente organización espacial. En la planta baja se plantea un acceso a través de un vestíbulo que aporta privacidad y orden al espacio, seguido de un aseo de cortesía y un despacho que permite destinar una zona específica para teletrabajo o estudio. La sala principal integra estar, comedor y cocina en un concepto abierto y fluido, pensado para aprovechar al máximo la iluminación natural y fomentar la vida familiar en un único ambiente cómodo y versátil. La escalera ubicada en esta planta conecta de manera armónica con los niveles superiores.
En la planta primera se sitúa la zona más privada de la vivienda, donde el dormitorio principal constituye una suite con vestidor y baño completo, ofreciendo un espacio amplio y bien diferenciado. En este mismo nivel se encuentran dos dormitorios dobles de generosas dimensiones y un baño adicional que da servicio a las habitaciones secundarias. La circulación vertical continúa a través de la escalera que conduce a la planta de cubierta.
La cubierta transitable añade un valor funcional muy destacado a la vivienda. En este nivel se proyecta una solana destinada a lavandería y servicios, un trastero que amplía notablemente la capacidad de almacenamiento y una terraza que se convierte en un espacio ideal para disfrutar del clima, crear una zona de ocio, instalar un solárium o simplemente contemplar el entorno con total privacidad. El conjunto ofrece una oportunidad excepcional tanto para autopromotores que deseen construir dos viviendas de calidad en un entorno privilegiado como para inversores que busquen desarrollar un producto inmobiliario rentable, con un proyecto ya aprobado y una ubicación altamente atractiva dentro de Acoran,
No deje pasar la oportunidad y solicítenos información.
Property type
Interest type
Estimated monthly payment
517 € *
* Provisional, subject to study and offer from CaixaBank
Are you already looking for finance?
We help you find the option that best suits you.
Service offered by
Fotocasa does not act as a financial intermediary. The information provided is for guidance only, based on publicly available market information. The credit institution will contact the potential borrower to negotiate, facilitate, and agree upon the applicable financial conditions.
Your monthly payment
517 € *
For 30 years (360 payments)
* Provisional, subject to study and offer from CaixaBank
Property price:
150.000 €
Taxes and Fees:
10.903 €
Total property cost:
160.903 €
Savings contributed:
30.000 €
Mortgage amount:
130.903 €
Total Interest:
55.298 €
Total cost with mortgage
216.201 €
Principal + interest + taxes and fees
Are you already looking for finance?
We help you find the option that best suits you.
Service offered by
Fotocasa does not act as a financial intermediary. The information provided is for guidance only, based on publicly available market information. The credit institution will contact the potential borrower to negotiate, facilitate, and agree upon the applicable financial conditions.
Choose the Fiber that best suits you.
Get electricity and gas online, no contract required
Please let us know about it so we can correct it.