Connect your home
Choose the Fiber that best suits you.
Torrent
Si eres inversor promotor, te ofrecemos una parcela en Calle Gomez Ferrer de Torrent para construir una nueva finca hasta 5 alturas en un parte y 3 alturas en otra parte. Al tratarse de una parcela esquinera, depende a que calle recae, la normativa urbanistica de Torrent, limita el número de alturas.
Es una parcela esquinera que recae a tres calles diferentes, y por tanto, permite acceso diferentes para locales comerciales, garajes...etc.
En este momento también se comercializa como venta propiedad independiente para reformar y usar en el estado en que se encuentra.
¿Quieres verla bien? No dudes en llamarnos para ir a visitarla. Pero como anticipo, tienes la posibilidad de realizar un tour 360º para que la puedas visualizar, tomar medidas, ver tamaños y distribuciones, en definitiva, imaginarte viviendo en esta fantástica vivienda. Si este inmueble te gusta en la visita virtual, en el video o en las fotografías, cuando lo visites personalmente, veras todo el potencial que tiene y todo lo que se puede hacer.
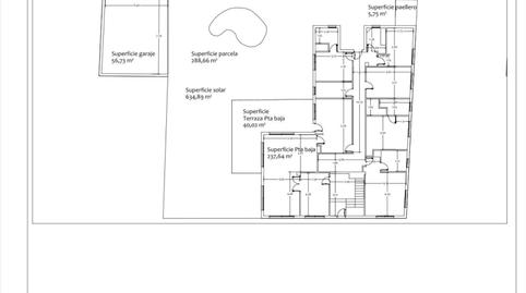
Esta propiedad ubicada en una parcela esquinera que recae a tres calles con una superficie de 606 m2 en la cual esta ubicado el edificio principal de dos plantas con una superficie construida total de 453 m2 más terrazas y un edificio adicional con una superficie construida de 104 m2 en dos plantas de 52 m2 cada una, la planta de baja es garaje y almacén y la parte de arriba zona diáfana. El resto de parcela esta ocupada por piscina, terrazas descubiertas y jardín.
El edificio principal se distribuye en dos niveles. La planta baja consta de una vivienda con acceso desde un patio o zaguán, distribuida en vestíbulo, comedor, cinco dormitorios, cocina, cuarto de baño, tres aseos y terraza. El piso alto al que se accede por escalera desde el zaguán consta de una vivienda distribuida en vestíbulo, comedor, cinco dormitorios, despacho, cuarto de baño, dos aseos y una terraza recayente al jardín.
Por mandato expreso del propietario, comercializamos este inmueble en exclusiva, lo que le garantiza un servicio de calidad, un trato fácil, sencillo y sin interferencias de terceros. Por este motivo, se ruega no molestar al propietario, a los ocupantes de la propiedad, a los vecinos si los hubiera. Muchas gracias por su comprensión.
La oferta está sujeta a cambios de precio o retirada del mercado sin previo aviso. Este anuncio en su conjunto, incluyendo textos, fotos, imágenes o cualquier otro contenido de este, no es vinculante dado que la información es ofrecida por terceros y puede contener errores. Se muestra a título informativo y no contractual. Las medidas, superficies y diseño del plano facilitado son meramente orientativas. 'El precio NO INCLUYE los gastos de corretaje inmobiliario, impuestos (IVA, ITP, AJD), plusvalía, notaría y registro'
Property type
Interest type
Estimated monthly payment
2.321 € *
* Provisional, subject to study and offer from CaixaBank
Are you already looking for finance?
We help you find the option that best suits you.
Service offered by
Fotocasa does not act as a financial intermediary. The information provided is for guidance only, based on publicly available market information. The credit institution will contact the potential borrower to negotiate, facilitate, and agree upon the applicable financial conditions.
Your monthly payment
2.321 € *
For 30 years (360 payments)
* Provisional, subject to study and offer from CaixaBank
Property price:
650.000 €
Taxes and Fees:
67.497 €
Total property cost:
717.497 €
Savings contributed:
130.000 €
Mortgage amount:
587.497 €
Total Interest:
248.179 €
Total cost with mortgage
965.676 €
Principal + interest + taxes and fees
Are you already looking for finance?
We help you find the option that best suits you.
Service offered by
Fotocasa does not act as a financial intermediary. The information provided is for guidance only, based on publicly available market information. The credit institution will contact the potential borrower to negotiate, facilitate, and agree upon the applicable financial conditions.
Choose the Fiber that best suits you.
Save 30% on a 5-star service.
Please let us know about it so we can correct it.