Connect your home
Choose the Fiber that best suits you.
Sevilla Capital
¡Locales versátiles ideales para oficinas modernas!
Te presentamos una exclusiva promoción de 6 locales comerciales que se adaptan perfectamente para oficinas. Con espacios funcionales, ubicación estratégica y diseño de vanguardia, estos locales son ideales para empresas que buscan un entorno profesional y bien conectado.
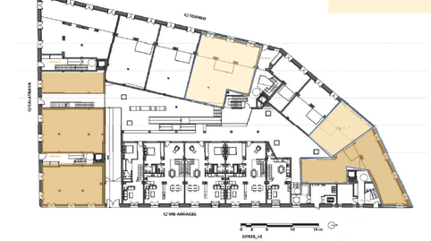
Características de los locales disponibles
🔹 Local 1: 215,93 m² útiles | 231,74 m² construidos
🔹 Local 5: 51,02 m² útiles | 58,18 m² construidos
🔹 Local 6: 101,71 m² útiles | 113,21 m² construidos
🔹 Local 7: 88 m² útiles | 106,92 m² construidos
🔹 Local 8: 162,19 m² útiles | 188,82 m² construidos
🔹 Local 9: 84,2 m² útiles | 94,66 m² construidos
Ventajas exclusivas para oficinas:
🏢 Diseño moderno y adaptable: Espacios listos para personalizar según las necesidades de tu negocio.
📍 Ubicación estratégica: Zona de crecimiento rodeada de servicios y bien comunicada, ideal para clientes y empleados.
🅿 Opcional plazas de aparcamiento: Mayor comodidad para tu equipo y visitantes.
🌟 Iluminación y ventilación natural: Ambientes que favorecen la productividad y el bienestar laboral.
🔑 Versatilidad: Espacios que pueden combinar áreas de trabajo, salas de reuniones y zonas comunes.
La ubicación ideal para tu empresa
Estos locales se encuentran en una zona residencial con alta densidad de población y excelente conectividad. Perfectos para empresas que buscan establecer una imagen profesional en un entorno estratégico.
Transforma estos espacios en el corazón de tu negocio
Contáctanos para más información y agenda una visita. Descubre cómo estos locales pueden convertirse en la oficina que tu empresa necesita.
¡Invierte en el futuro de tu empresa!
Property type
Lift
Furnished
Energy
Emissions
Interest type
Estimated monthly payment
689 € *
* Provisional, subject to study and offer from CaixaBank
Are you already looking for finance?
We help you find the option that best suits you.
Service offered by
Fotocasa does not act as a financial intermediary. The information provided is for guidance only, based on publicly available market information. The credit institution will contact the potential borrower to negotiate, facilitate, and agree upon the applicable financial conditions.
Your monthly payment
689 € *
For 30 years (360 payments)
* Provisional, subject to study and offer from CaixaBank
Property price:
198.000 €
Taxes and Fees:
15.856 €
Total property cost:
213.856 €
Savings contributed:
39.600 €
Mortgage amount:
174.256 €
Total Interest:
73.612 €
Total cost with mortgage
287.468 €
Principal + interest + taxes and fees
Are you already looking for finance?
We help you find the option that best suits you.
Service offered by
Fotocasa does not act as a financial intermediary. The information provided is for guidance only, based on publicly available market information. The credit institution will contact the potential borrower to negotiate, facilitate, and agree upon the applicable financial conditions.
Choose the Fiber that best suits you.
Get electricity and gas online, no contract required
Please let us know about it so we can correct it.