200.000 €
Residential in San Pedro - Gabriel Miró - María Guerrero
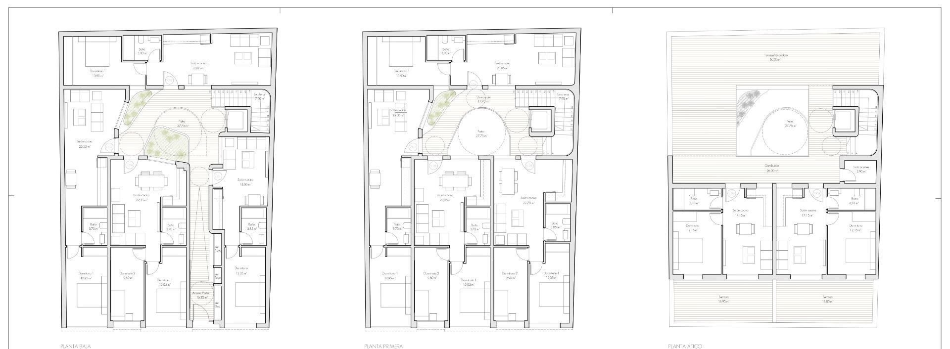
Solar para promoción de viviendas. Según proyecto básico realizado se puede construir 4 viviendas en planta baja (3 de un dormitorio y 1 de 2 dormitorios), en primera panta se puede construir 2 viviendas de 1 dormitorio y 2 de 2 dormitorios, en la planta ático se puede construir 2 viviendas de 1 dormitorio. Además en planta semisótano se pueden hacer 6 plazas de aparcamiento. [IW]
- 260 m²
