Single-family semi-detached in Calle MIQUEL TORTELL, Muro
Muro
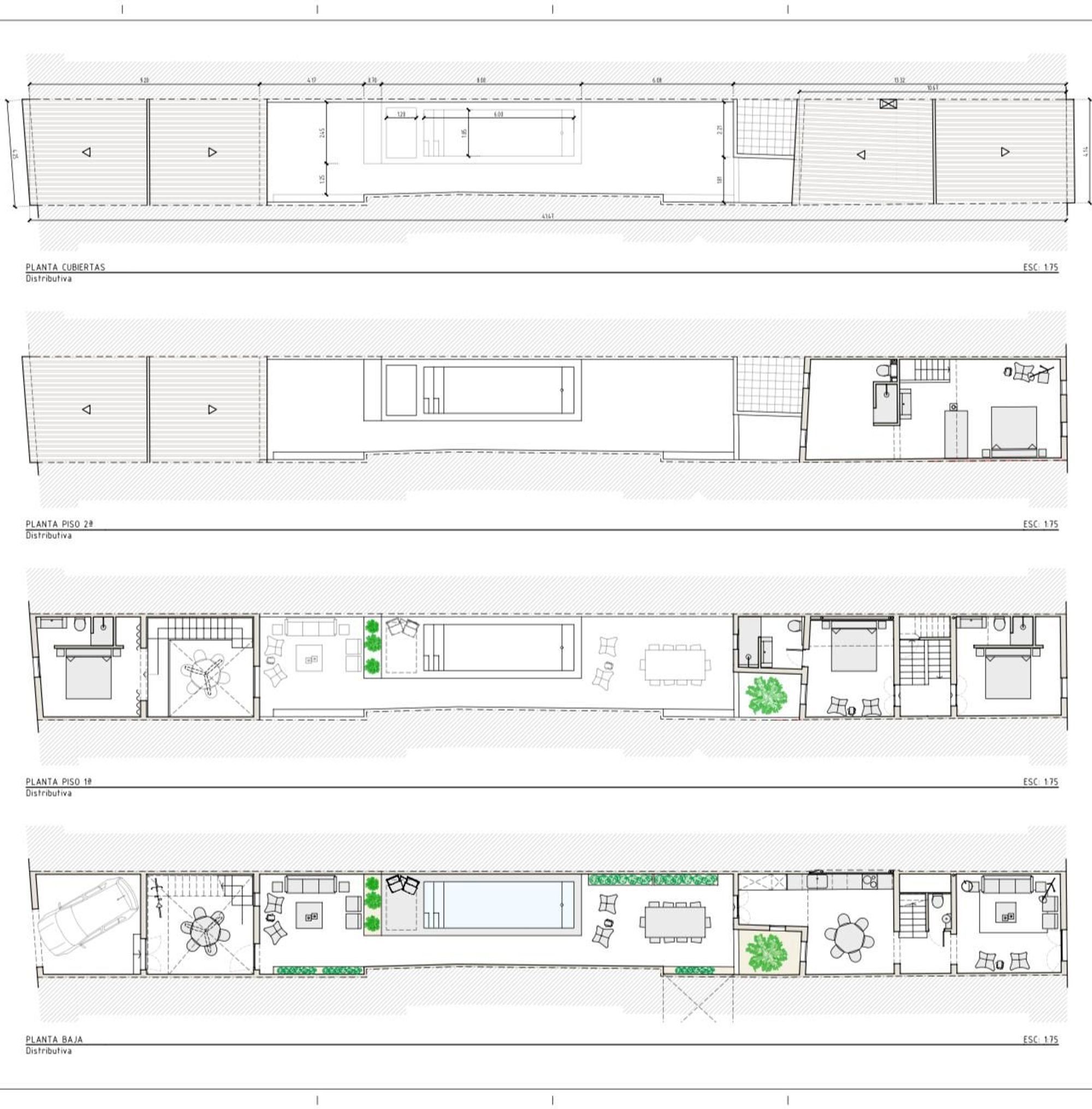
Casa con encanto y mucho carácter en el corazón del casco antiguo de Muro. A tan solo 100 metros de la Plaza Mayor, en una zona tranquila de calles adoquinadas, se encuentra esta fantástica vivienda de estilo tradicional mallorquín. Construida en el siglo XIX y reformada íntegramente a principios del siglo XXI, conserva todos los elementos arquitectónicos característicos de la época: muros de piedra de gran espesor que proporcionan un excelente aislamiento térmico y acústico, vigas vistas y carpintería de madera maciza. La casa, situada en esquina y distribuida en tres plantas, ofrece espacios llenos de historia y luz natural. Al atravesar los portones de madera accedemos a un acogedor recibidor que conduce a una estancia central presidida por la escalera que comunica las diferentes plantas. En la planta baja se encuentra la cocina, cuidada hasta el más mínimo detalle y bañada por la luz que entra a través de su gran ventanal. Desde ella se accede a un espacio intermedio donde se conserva la antigua cisterna de recogida de aguas pluviales y un baño completo. Este espacio comunica con un amplio salón, ideal para reuniones familiares, que a su vez conecta directamente con el garaje. En la primera planta se ubican dos dormitorios, un baño completo y una encantadora terraza descubierta, perfecta para disfrutar del clima mediterráneo y de momentos de tranquilidad. En esta planta destacan algunos detalles arquitectónicos muy especiales que realzan el carácter de la vivienda. La segunda planta, que antiguamente fue el granero, se ha convertido en una amplia suite con baño privado, ofreciendo un ambiente íntimo y lleno de personalidad. La casa dispone de aire acondicionado y garaje, y representa una oportunidad única para vivir la esencia del pueblo de Muro con todas las comodidades actuales. Sobre Muro y su entorno: Muro es un pintoresco municipio del centro-norte de Mallorca, conocido por su autenticidad, su rico patrimonio histórico y la tranquilidad de su vida cotidiana. Su casco antiguo conserva la esencia de la arquitectura tradicional mallorquina, con calles empedradas, fachadas de piedra y una encantadora Plaza Mayor que actúa como punto de encuentro. La vivienda se encuentra en una de las zonas más cómodas del pueblo, rodeada de todos los servicios necesarios para el día a día: supermercados, farmacia, estanco, restaurantes y cafeterías, todo a escasos metros. Esta ubicación permite disfrutar de la vida de pueblo con total comodidad, sin necesidad de desplazamientos. A tan solo 10 minutos en coche se encuentra la popular playa de Muro, una de las más valoradas de la isla por su arena fina y aguas cristalinas. En los alrededores destacan pueblos con gran encanto como Sa Pobla, Llubí, Santa Margalida y Can Picafort, todos ellos con una amplia oferta gastronómica, cultural y de ocio. Gracias a su excelente ubicación, Muro ofrece la calma de un entorno rural y tradicional sin renunciar a la cercanía de las principales zonas turísticas y de servicios de la isla. Por razones de privacidad no compartimos la ubicación exacta de nuestras propiedades. La dirección publicada indica la zona del inmueble. Ofrecemos asesoramiento personalizado con especialistas en financiación. Los datos expuestos son ofrecidos por terceros, meramente informativos y se suponen correctos ya que se han contrastado con la información del catastro. Inmocharme no garantiza su veracidad. Los gastos de transmisión patrimonial, notario y registro corren a cargo del comprador. Para más información contacte con nosotros. Somos Inmocharme. Mallorca charme S.L. Registro Oficial de Agentes Inmobiliarios de les Illes Balears (ROAIIB): GOIBE722270/2024
- 3 rooms·
- 2 bath·
- 184 m²·
- Parking·
- Terrace·
- Air conditioning
