- new
- Top+
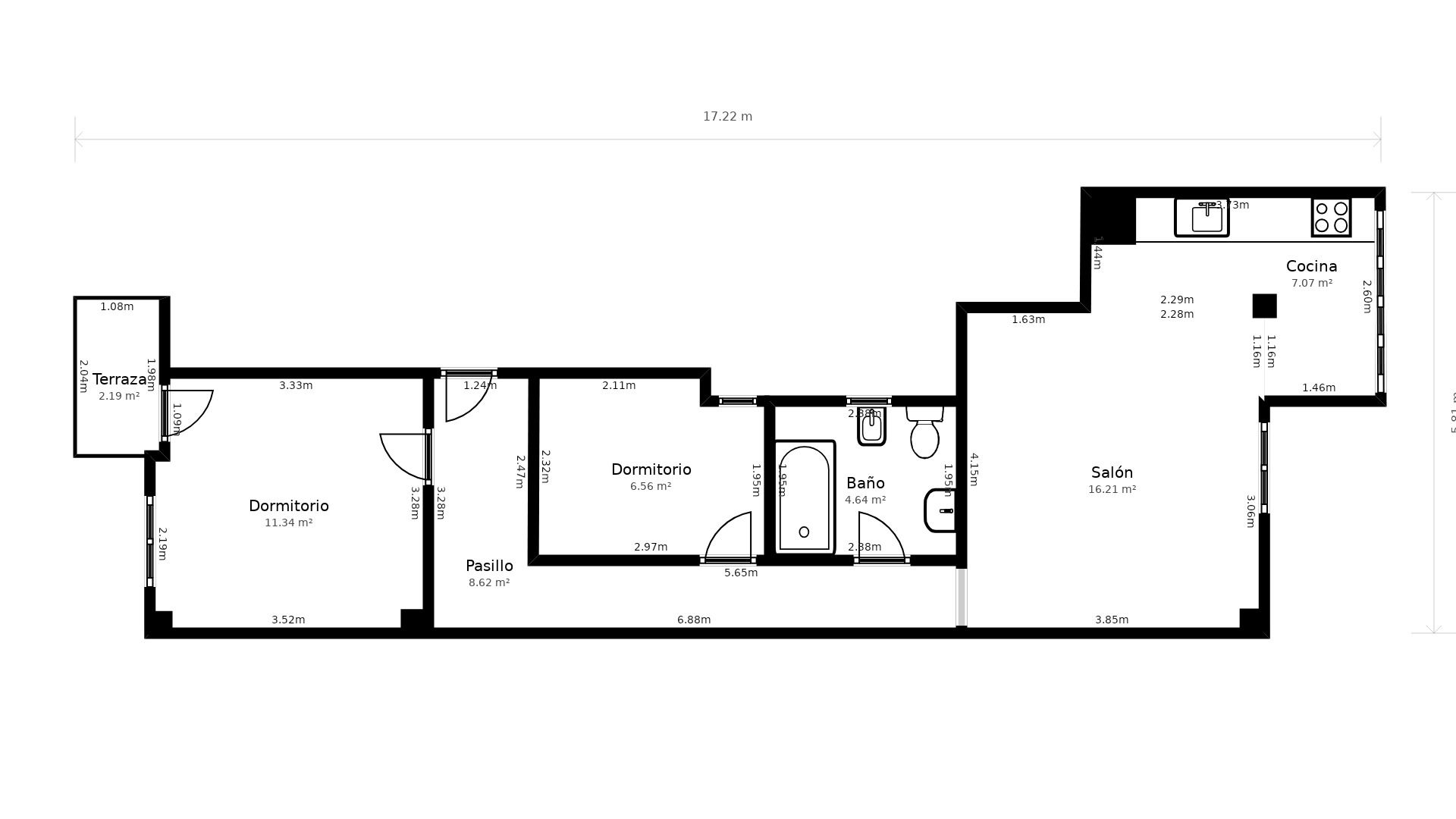
Flat of 85 m² in Zona La Ermita
- 3 rooms·
- 1 bath·
- 85 m²·
- 3rd floor·
- new
- Top+
¡ALTA DE SUMINISTROS GRATIS! Excelente vivienda de tres dormitorios y un baño. Se encuentra en la planta 3 de un edificio residencial. No dispone de ascensor. Situado en Zona La Ermita en el municipio de Torrent. La vivienda se distribuye en tres dormitorios, salón-comedor, cocina independiente y un baño. Cuenta con cocina amueblada y equipada con muebles altos y bajos, vitrocerámica, horno y campana extractora. Dispone de suelos de gres en cocina y baño y tarima en el resto de estancias. Se encuentra ubicado en Centro-Suroeste, Suroeste de Torrent. Cuenta con fácil acceso a través de las principales carreteras y buenas comunicaciones por transporte público. La parada de metro más cercana es Torrent Avinguda y se encuentra a menos de 20 minutos andando. La parada de autobús más cercana es 1. Al Vedat-Moralets y se encuentra a menos de 5 minutos andando. En su entorno existen viviendas plurifamiliares de similares características. La zona cuenta con todo tipo de servicios básicos, el centro de salud más cercano se encuentra a 380 metros, existen 4 farmacias a menos de 300 metros, existen 2 colegios a menos de 300 metros. Además, a menos de 500 metros también puedes encontrar 6 supermercados, 16 bancos, 2 lavanderías, una oficina de correos. La zona cuenta con una amplia oferta de entretenimiento con un teatro, un gimnasio, 18 parques, bares, restaurantes y comercios a pocos minutos de la vivienda. En cuanto al transporte privado, la zona dispone de parkings privados y aparcamiento en la calle. La vivienda tiene un fácil acceso por carretera y está bien comunicado a través de la CV-36, Placa de la Concordia y la CV-410. Requisitos: - 1 mes de fianza. - 1 mes de depósito. - Seguro del hogar a la firma del contrato. - Antigüedad laboral ininterrumpida superior a un año. - No aparecer en ningún fichero de morosidad. - Disponer de una ratio de solvencia* de entre un 30% y 35% dependiendo de la zona. *Solo se tendrán en cuenta ingresos demostrables para acreditar el ratio. La vivienda se comercializa mediante colaboradores que no cobran comisión de agencia, ofreciéndote un proceso directo, claro y sin costes añadidos.
