Non-payment insurance
We guarantee the collection of rental payments
Provided by:





La Lastrilla
REFORMADO INTEGRAMENTE A ESTRENAR.
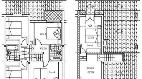
Adosado con estudio bajo cubierta, garaje individual, lavadero y bodega con chimenea francesa. Jardín privado 60m².
Amplio salón de dos niveles, 5 dormitorios dobles con armario empotrado, la suite con baño y terraza. Cocina amueblada, con todos los electrodomésticos a estrenar. Calefacción y ACS individuales. Puerta blindada y alarma.
Entorno ajardinado, próximo a Centro comercial y Bus; a 5 minutos AVE.
Typology
Orientation
Status
Antiquity
Parking
Energy consumption
Emissions
We guarantee the collection of rental payments
Choose the Fiber that best suits you.
Save 30% on a 5-star service.
Please let us know about it so we can correct it.