Non-payment insurance
We guarantee the collection of rental payments
Madrid Capital
¡ALTA DE SUMINISTROS GRATIS!
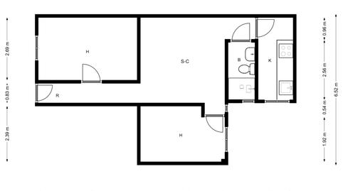
Excelente vivienda de dos dormitorios y un baño. Se encuentra en la planta 2 de un edificio residencial. No dispone de ascensor. Situado en San Diego en el distrito de Puente de Vallecas.
La vivienda se distribuye en dos dormitorios, salón-comedor, cocina independiente y un baño. Cuenta con cocina amueblada y equipada con muebles altos y bajos, vitrocerámica, horno y campana extractora. Dispone de suelos de gres en cocina y baño y tarima en el resto de estancias.
Se encuentra ubicado en San Diego, Puente de Vallecas (Sureste de Madrid). Cuenta con fácil acceso a través de las principales carreteras y buenas comunicaciones por transporte público. La parada de metro más cercana es Asamblea de Madrid-Entrevias y se encuentra a menos de 10 minutos andando. La parada de autobús más cercana es Cardenosa-Avenida de Entrevias y se encuentra a menos de 5 minutos andando. La parada de taxi más cercana se encuentra a menos de 20 minutos andando.
En su entorno existen viviendas plurifamiliares de similares características. La zona cuenta con todo tipo de servicios básicos, el centro de salud más cercano se encuentra a 390 metros, existen 6 farmacias a menos de 300 metros, existen 2 colegios a menos de 300 metros. Además, a menos de 500 metros también puedes encontrar 3 supermercados, 3 bancos.
La zona cuenta con una amplia oferta de entretenimiento con un teatro, 10 parques, bares, restaurantes y comercios a pocos minutos de la vivienda.
En cuanto al transporte privado, la zona dispone de parkings privados y aparcamiento en la calle. La vivienda tiene un fácil acceso por carretera y está bien comunicado a través de la M-40, Avenida de Entrevias y la Avenida de Pablo Neruda.
Requisitos:
- 1 mes de fianza.
- 1 mes de depósito.
- Seguro del hogar a la firma del contrato.
- Antigüedad laboral ininterrumpida superior a un año.
- No aparecer en ningún fichero de morosidad.
- Disponer de una ratio de solvencia* de entre un 30% y 35% dependiendo de la zona.
*Solo se tendrán en cuenta ingresos demostrables para acreditar el ratio.
La vivienda se comercializa mediante colaboradores que no cobran comisión de agencia, ofreciéndote un proceso directo, claro y sin costes añadidos.
Property type
Availability
Rental type
Hot water
Condition
Age
Floor
Lift
Furnished
Energy
Emissions
We guarantee the collection of rental payments
Choose the Fiber that best suits you.
Save 30% on a 5-star service.
Please let us know about it so we can correct it.