Non-payment insurance
We guarantee the collection of rental payments
Picanya
¡ALTA DE SUMINISTROS GRATIS!
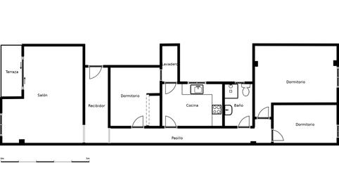
Excelente vivienda de tres dormitorios y un baño. Se encuentra en la planta 3 de un edificio residencial. No dispone de ascensor. Situado en el municipio de Picanya.
La vivienda se distribuye en tres dormitorios, armarios empotrados, salón-comedor, cocina independiente y un baño. Cuenta con cocina amueblada y equipada con muebles altos y bajos, vitrocerámica, horno y campana extractora. Dispone de balcones.
Se encuentra ubicado en Noreste de Picanya. Cuenta con fácil acceso a través de las principales carreteras y buenas comunicaciones por transporte público. La parada de metro más cercana es Picanya y se encuentra a menos de 20 minutos andando.
En su entorno existen viviendas plurifamiliares de similares características. La zona cuenta con todo tipo de servicios básicos, el centro de salud más cercano se encuentra a 290 metros. Además, a menos de 500 metros también puedes encontrar 2 supermercados.
La zona cuenta con una amplia oferta de entretenimiento con 2 teatros, 3 parques, bares, restaurantes y comercios a pocos minutos de la vivienda. Además, la playa más cercana se encuentra a menos de 10 minutos en transporte público.
En cuanto al transporte privado, la zona dispone de parkings privados y aparcamiento en la calle. La vivienda tiene un fácil acceso por carretera y está bien comunicado a través de la V-30, CV-366 y la CV-407.
Requisitos:
- 1 mes de fianza.
- 1 mes de depósito.
- Seguro del hogar a la firma del contrato.
- Antigüedad laboral ininterrumpida superior a un año.
- No aparecer en ningún fichero de morosidad.
- Disponer de una ratio de solvencia* de entre un 30% y 35% dependiendo de la zona.
*Solo se tendrán en cuenta ingresos demostrables para acreditar el ratio.
La vivienda se comercializa mediante colaboradores que no cobran comisión de agencia, ofreciéndote un proceso directo, claro y sin costes añadidos.
Property type
Availability
Rental type
Condition
Age
Floor
Lift
Furnished
Energy
Emissions
We guarantee the collection of rental payments
Choose the Fiber that best suits you.
Save 30% on a 5-star service.
Please let us know about it so we can correct it.