- Novetat
- Top
Casa adosada a Zona Centro Comercial Torrequebrada
- 3 habs ·
- 4 baños ·
- 279 m² ·
- Pàrquing ·
- Terrassa ·
- Piscina ·
- Aire condicionat ·
- Novetat
- Top
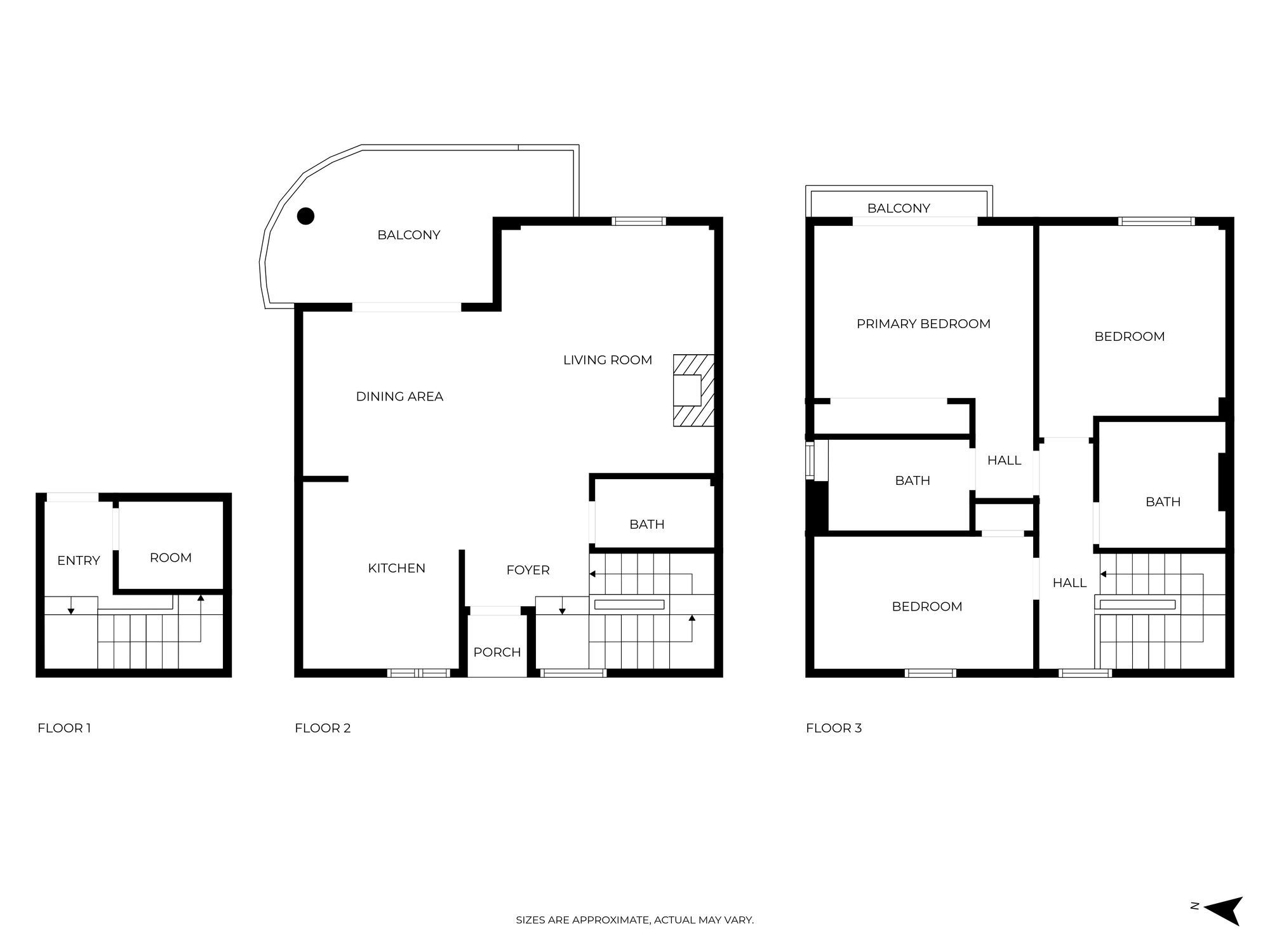
Esta impresionante casa pareada se encuentra en la codiciada zona de Nueva Torrequebrada, Benalmádena Costa, Málaga. Ubicada dentro de una pequeña y exclusiva comunidad de solo ocho propiedades, los residentes disfrutan de una piscina comunitaria y la proximidad a la reconocida playa Viborilla y al campo de golf Torrequebrada. La propiedad está idealmente situada cerca de una amplia gama de servicios, incluyendo colegios, supermercados, tiendas y restaurantes, lo que la convierte en una excelente opción tanto para familias como para profesionales. La vivienda ofrece una generosa superficie construida de 279,6 m², con 204,66 m² de espacio interior y 74,94 m² de terrazas, porches y solárium. El hogar se distribuye en varios niveles, proporcionando privacidad y flexibilidad. La planta sótano alberga una amplia suite principal con baño en suite y vestidor, mientras que la planta inferior cuenta con dos dormitorios adicionales, cada uno con su propio baño en suite y acceso a una terraza privada. La planta de entrada está diseñada para ofrecer comodidad y espacios ideales para el entretenimiento, con un recibidor, cocina independiente totalmente equipada, baño adicional, salón, comedor y una terraza con vistas parciales al mar. También dispone de garaje privado, cochera y un acogedor porche. La propiedad se presenta en excelente estado, habiendo sido objeto de importantes mejoras desde su distribución original de cinco dormitorios hasta su configuración actual de tres dormitorios de generosas dimensiones, todos con baño en suite. Los acabados de alta calidad son evidentes en toda la vivienda, incluyendo suelos de mármol y parquet, doble acristalamiento, aire acondicionado y chimenea. Entre otras características destacan un solárium de 28,6 m², armarios empotrados, trastero, sistemas de seguridad y videoportero, así como conectividad a internet de alta velocidad. La casa se vende sin amueblar, pero con cocina y baños completamente equipados. Esta vivienda ofrece confort, seguridad y comodidad en una ubicación costera privilegiada. Con sus amplias terrazas, vistas parciales al mar y fácil acceso tanto a la playa como al golf, representa una oportunidad excepcional para quienes buscan un estilo de vida refinado en Benalmádena.
