Apartament a Rúa de Antonio Nieto Figueroa, Lavadores
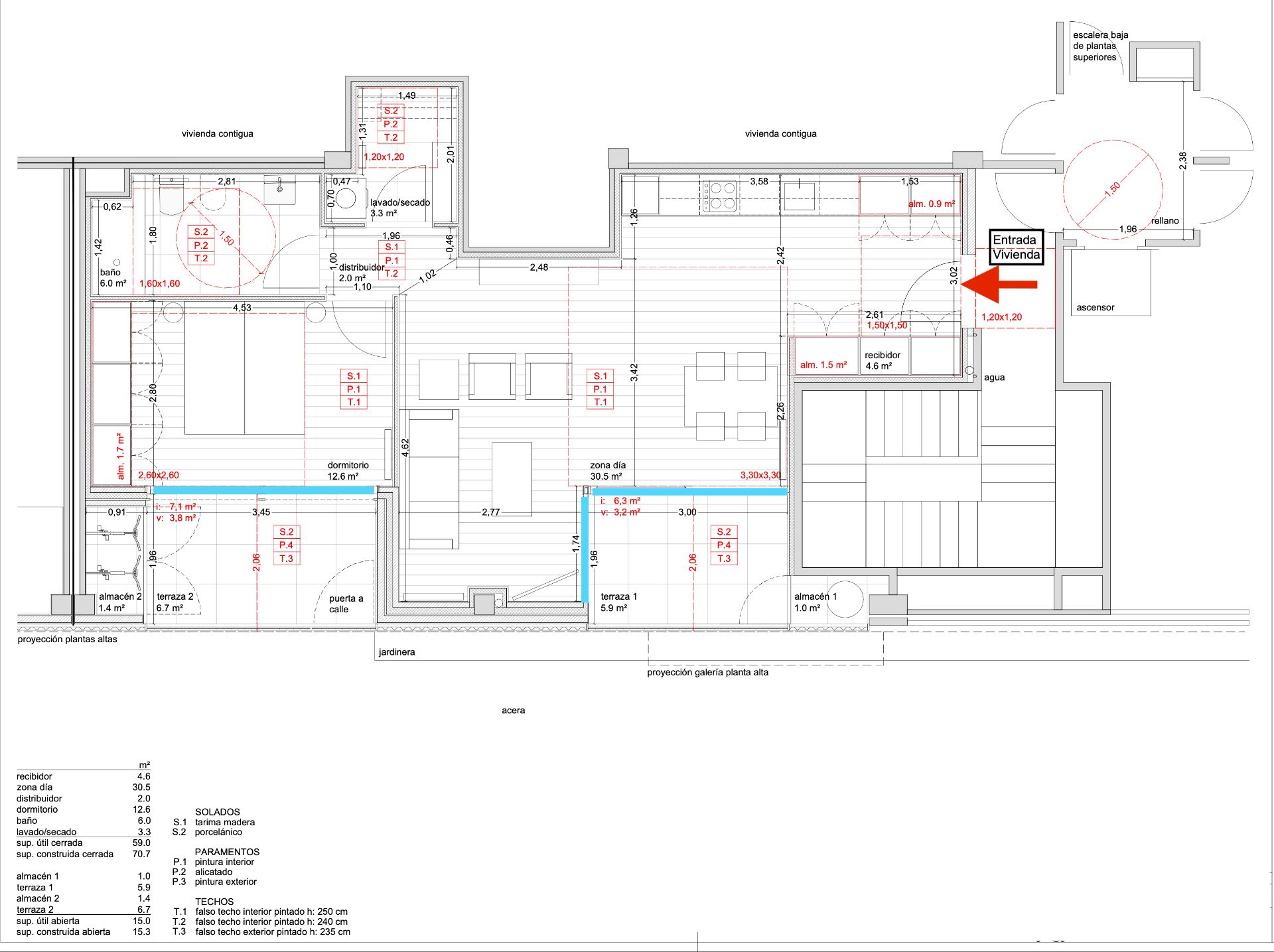
Precio imbatible! Local con licencia de vivienda de un Dormitorio, con cuarto de baño, lavadero, con dos terrazas, plaza de garaje y ascensor en Barreiro , Vigo. PROYECTO TÉCNICO DE ADECUACIÓN DE LOCAL PARA USO VIVIENDA recibidor 4.6 m2 zona día 30.5 m2 distribuidor 2.0 m2 dormitorio 12.6 m2 baño 6.0 m2 lavado/secado 3.3 m2 sup. útil cerrada 59.0 m2 sup. construida cerrada 70.7 m2 -------------------------- almacén 1 1.0 m2 terraza 1 5.9 m2 almacén 2 1.4 m2 terraza 2 6.7 m2 sup. útil abierta 15.0 m2 sup. construida abierta 15.3 m2 SOLADOS tarima madera porcelánico PARAMENTOS pintura interior alicatado pintura exterior TECHOS falso techo interior pintado h: 250 cm falso techo interior pintado h: 240 cm falso techo exterior pintado h: 235 cm La vivienda resultante es una vivienda de Protección Oficial autonómica con precios de reventa o alquiler fijados por la Xunta de Galicia. Cuenta con dos terrazas y grandes ventanales de suelo a techo que otorgan luz natural y ventilación. Actualmente el local se encuentra en estado lóbrego y con el proyecto de ejecución presentado y aprobado por la gerencia de urbanismo del Concello de Vigo, listo para empezar a obrar inmediatamente, ICIO pagado. Este local es ideal para profesionales y se ubica en el entorno del complejo deportivo Mais que Auga y la residencia de mayores Domus Barreiro, bien comunicado con Colegios, Supermercados, parada de Autobús, etc. La entrada a la futura vivienda se hace desde el portal del edificio, no desde el exterior. ¡Contáctanos hoy mismo para más información y para concertar una visita! Ado Vigo trabaja con una red de profesionales de la construcción, que nos permite asesorarle sobre las mejores opciones de reforma, instalación y mejoras en materia de eficiencia energética, para adaptar su nueva vivienda a los estándares de 2025, así como opciones de financiación. El anunciante no se responsabiliza de posibles errores de carácter involuntario que este anuncio pudiera contener, la información proporcionada no tiene valor contractual.
- 1 hab·
- 1 baño·
- 80 m²·
- baixos