Dúplex a PACIFICO, 80, Martín Carpena - Torre del Río
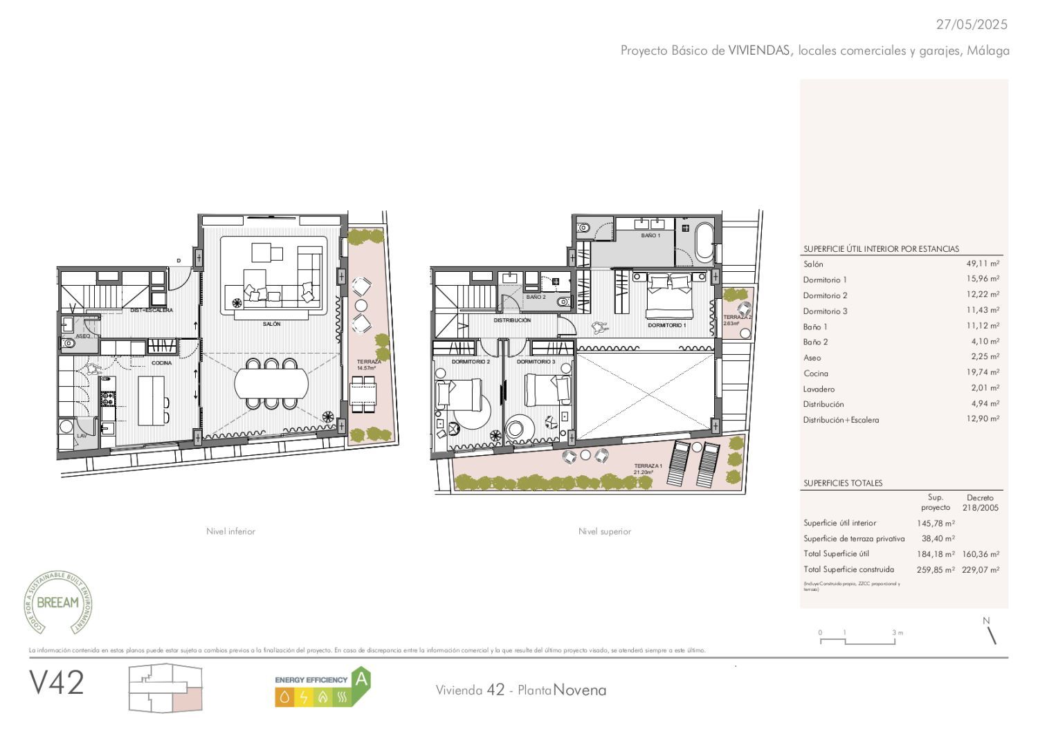
DÚPLEX de Lujo de 3 dormitorios y 3 baños [181 m2 (vivienda) + 38 m2 (Terraza). En 1ª Línea de Playa, donde su arquitectura única y sostenible sirve de punto de encuentro entre el mar Mediterráneo y la ciudad de Málaga. Cada residencia se abre al mar a través de amplias terrazas que ofrecen vistas inigualables. Calificación energética AA. Entrega 2 Trimestre 2.026. Características de la Promoción: Ubicación privilegiada. Vivienda inteligente. Materiales de primera calidad. Piscina y solárium en la azotea. Vistas al mar. Plazas de aparcamiento y trastero. Urbanización cerrada. Solárium, piscina exterior y zona chill out. Espacio versátil y multiusos. Gimnasio totalmente equipado. Espacio de trabajo. Preinstalación para coches eléctricos. Diseño moderno y espacio optimizado. Cocina totalmente equipada de concepto abierto. Servicio de interiorismo.
- 3 habs·
- 3 baños·
- 183 m²·
- 9ª planta