- Fa 616 dies
Casa o xalet amb terrassa a Molí des Pla - Andrea Doria
- 4 habs·
- 4 baños·
- 270 m²·
- Pàrquing·
- Terrassa·
- Calefacció·
- Aire condicionat·
- Traster·
- Fa 616 dies
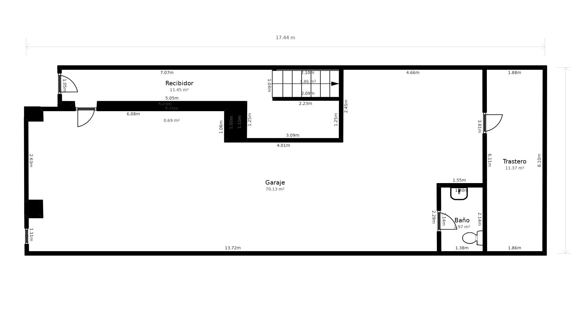
Casa de dos plantas con garaje en venta en Mahón, recién reformada de manera integral, abordando tanto la estructura como las instalaciones, manteniendo únicamente la fachada exterior, la cual ha sido también restaurada. Con una superficie total de 270m2, distribuidos en garaje, primera y segunda planta, al entrar desde la calle nos recibe un amplio recibidor que da acceso al garaje de 110m2, con capacidad para 4 coches, un espacio de almacenamiento independiente y un aseo. Desde aquí, unas cómodas escaleras nos llevan a la primera planta, donde encontramos una cocina elegante y funcional con isla, abierta a un luminoso salón-comedor. La cocina está equipada con electrodomésticos de alta gama y encimera de cuarcita importada de EE. UU. Desde la cocina y el salón, se accede a una encantadora terraza trasera donde se encuentra un lavadero equipado con lavadora, secadora y un sistema de osmosis de caudal ilimitado, conocido como tiro directo, que es uno de los sistemas más avanzados del mercado. También en esta planta hay una habitación individual, una habitación doble con armario empotrado, una suite con baño y vestidor, y un segundo baño. En la segunda planta, a la que se accede por las mismas escaleras, encontramos otra suite con baño y vestidor, así como una amplia terraza de unos 60m2 con cocina exterior y barbacoa. La propiedad destaca por su excelente gusto en el diseño de la reforma y el uso de materiales de alta calidad, como baldosas de gres porcelánico y grifería Grohe. Entre los extras de la propiedad se incluyen un sistema de aerotermia Lydos Hibrid sin máquina exterior, aire acondicionado frío/calor en todas las estancias, videoportero con cámara de seguridad de visión nocturna, luces LED de bajo consumo y una moderna bomba de presión silenciosa para garantizar una presión de agua óptima. La ubicación de la propiedad es inmejorable, con todos los servicios cercanos, como farmacias, cafeterías, supermercados y colegios. En resumen, se trata de una propiedad única en el actual mercado de Mahón. ZONA: Mahón.
