Oficina a Calle Imeldo Serís, 8, Centro
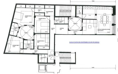
Ifara Home te presenta una magnífica oficina en venta, idealmente ubicada en el corazón de Santa Cruz. Con un espacio total de 124 m² y una encantadora terraza cubierta de 26 m², esta propiedad es perfecta tanto para inversores como para aquellos que buscan un nuevo hogar. La oficina cuenta con dos despachos exteriores que proporcionan luminosidad y confort, además de un aseo original que ofrece funcionalidad inmediata. Lo más atractivo es la posibilidad de realizar un cambio de uso a vivienda, lo que permite aprovechar al máximo el espacio disponible y adaptarlo a tus necesidades personales. Situada en una zona inmejorable, esta propiedad se encuentra en una zona peatonal rodeada de hoteles y con acceso fácil a todo tipo de transporte público. Además, tendrás todos los servicios cercanos, lo que hará tu día a día mucho más cómodo y práctico. No dejes pasar la oportunidad de adquirir esta propiedad única en una de las mejores ubicaciones de Santa Cruz. ¡Contáctanos para más información y agenda tu visita hoy mismo!
- 1 baño ·
- 150 m² ·
- Ascensor ·
- Aire condicionat
