Obra nova · Pis a Carrer de Sant Ramon, 239, Sant Ramón
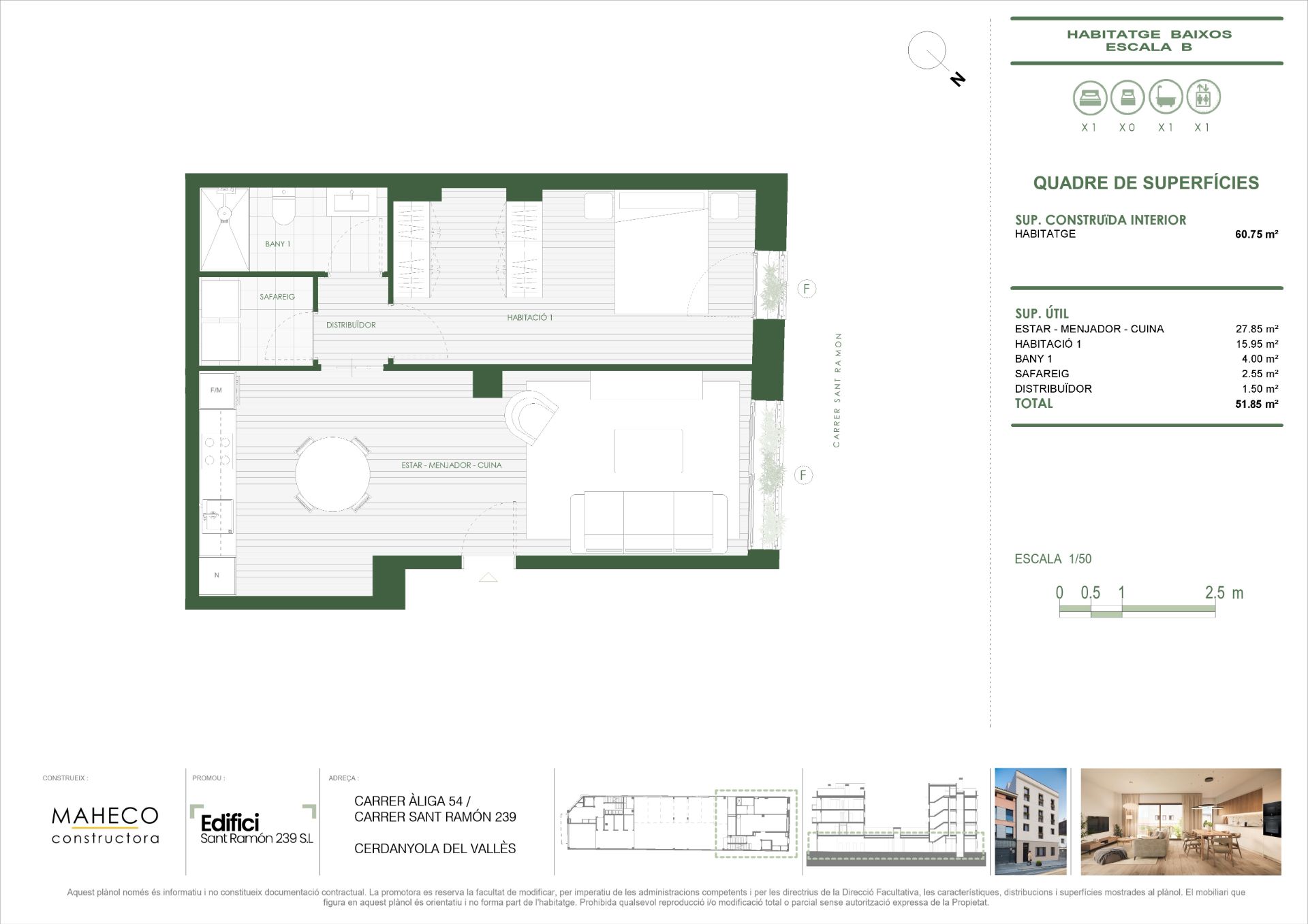
Bajo Esc. B Esta vivienda de la promoción Sant Ramon consta de 60,75m2 construidos, está situada en la escalera B del edificio por lo que la vivienda da a calle Sant Ramon, está formada por: - Cocina-comedor-salón de 27,85m2 - Habitación principal de 15,95 m2 - Baño 1 de 4,00 m2 - Lavadero de 2,55 m2 El edificio dispone de plazas de aparcamiento y trastero, garantizando funcionalidad y comodidad en un entorno moderno y acogedor. La promoción Sant Ramon se encuentra muy bien ubicada: - Rodeada de servicios básicos como farmacias, cafeterías, colegios, restaurantes y pequeños comercios de proximidad. - Excelente conexión con transporte público y rápido acceso a la C-58 y AP-7. - A pocos metros del supermercado Bonpreu. - A 6 minutos en coche de Sant Cugat del Vallès - A 8 minutos en coche de la estación de RENFE de Cerdanyola. - A 9 minutos de la estación de FGC de la Universitat Autònoma. Nuestro Departamento Comercial organiza visitas personalizadas en el showroom ubicado en nuestras oficinas (calle Camèlies, 13 de Cerdanyola del Vallès). Reserva tu cita llamando al 930 26 83 32 o 672 74 53 40. Se ofrece la posibilidad de visitar un piso de muestra en otra promoción para ver los acabados reales de la vivienda. Fecha prevista de entrega: 4to trimestre 2026. ¡En Maheco, hacemos realidad tu vivienda!
- 1 hab ·
- 1 baño ·
- 60 m² ·
- baixos