Residencial a La Teixonera
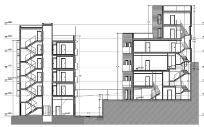
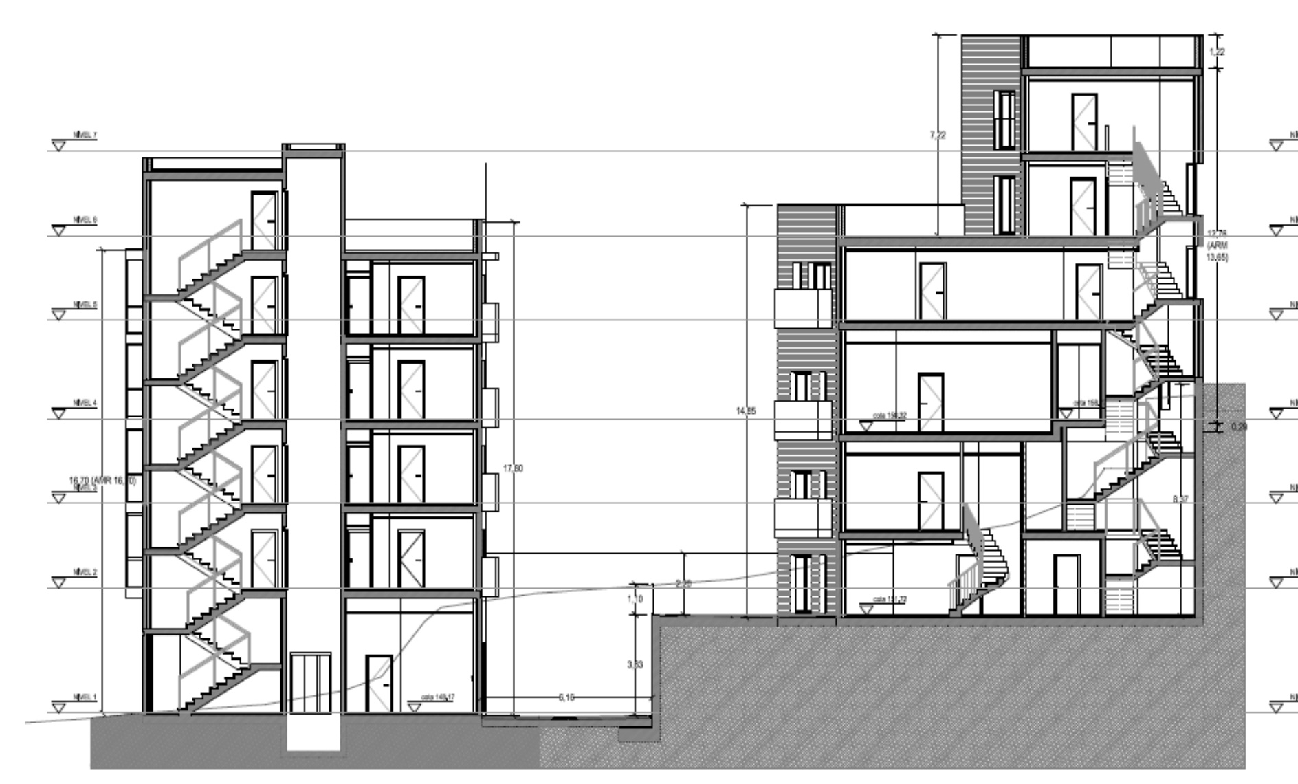
OWN te presenta esta oportunidad de adquirir este proyecto ejecutivo con licencia para edificar dos edificios con un total de 7 pisos. Con 203m² de parcela y un total de 495m² de techo según proyecto actual con licencia. 2 EDIFICIOS OBRA NUEVA 1 TRIPLEX CON TERRAZA 2 DUPLEX CON TERRAZA 4 PISOS EDIFICIO A: Superficie construida total 413m² PB Dúplex con jardín, 99m² + 32,50m² P1-P2-P3 Planta Tipo 57m² EDIFICIO B: Superficie construida total 363m². Dúplex con jardín, 74m² + 32m² PB 48m² Triplex con terrazas, 127m² + 31m² Proyecto ejecutivo y licencia incluidos en el precio. No dudes en contactarnos para ampliar información. OWN HOMES +34/699 600 405. own@deboraescoda.com [IW]
- 776 m²