Residencial a La Teixonera
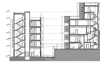
Parcela en venta con proyecto y licencia en Horta. Esta propiedad de 203 m² ( 776 m2 superficie edificable ) permite desarrollar dos edificios de obra nueva, que incluirían un total de un tríplex con terraza, dos dúplex también con terraza y cuatro pisos adicionales. La parcela se entrega con proyecto ejecutivo y licencia de obra concedida. Horta es un barrio tranquilo y familiar, ideal para quienes buscan calidad de vida. Cuenta con una comunidad cohesionada, diversos centros educativos, servicios sanitarios y excelentes conexiones de transporte público, con acceso a varias líneas de metro y autobuses. Además, ofrece una amplia oferta gastronómica, desde restaurantes de cocina catalana tradicional hasta propuestas más contemporáneas. El ambiente auténtico del barrio, sus mercados locales y tiendas de proximidad lo convierten en un lugar perfecto para disfrutar del día a día en Barcelona. El precio incluye el terreno, el proyecto ejecutivo y la licencia de obras vigente. Honorarios de intermediación a cargo del comprador. No dudes en contactarnos para recibir más información. ¡Vive donde mereces vivir!
- 203 m²
