Residencial a Suiza, 8, La Torre - Playa de Chilches
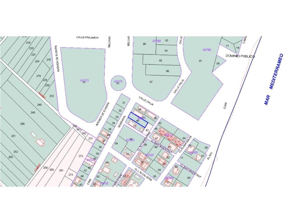
Parcela situada en el sector Belcaire Sur de Moncofa, en la que se ha realizado una división horizontal en construcción para 384 viviendas y 422 garajes. La parcela tiene una superficie de 8.115 m2s y una edificabilidad de 24.064 m2e. Referencia Catastral: 4580901YK4048S0001HP Estaba prevista la construcción de 3 bloques de 11, 13 y 11 plantas sobre rasante y 2 bajo rasante, con una superficie construida de 28.514,40 m2c (viviendas), 2.048 m2c (garajes sobre rasante) y 11.456 m2c (garajes bajo rasante), lo que supone un total de 42.018,40 m2c. La obra se encuentra ejecutada en torno al 9,79 %, habiéndose realizado el movimiento de tierras, cimentación y muros de contención. En el Sector Belcaire Sur, estaban suspendidos los Proyectos de Reparcelación y Urbanización así como las Obras de Urbanización realizadas hasta la fecha. El Ayuntamiento resolvió la condición de agente urbanizador y, tras aprobar el nuevo proyecto de reparcelación, se realizará la urbanización por gestión directa. Las obras de urbanización estaban ejecutadas en torno al 94 %. No obstante, el coste de urbanización actualmente estimado pendiente de ejecutar para todo el sector, estaría en torno a 15 MM €, incluyendo el puente de conexión con Belcaire Norte.
- 8114 m²
