Casa o xalet a Santa Catalina
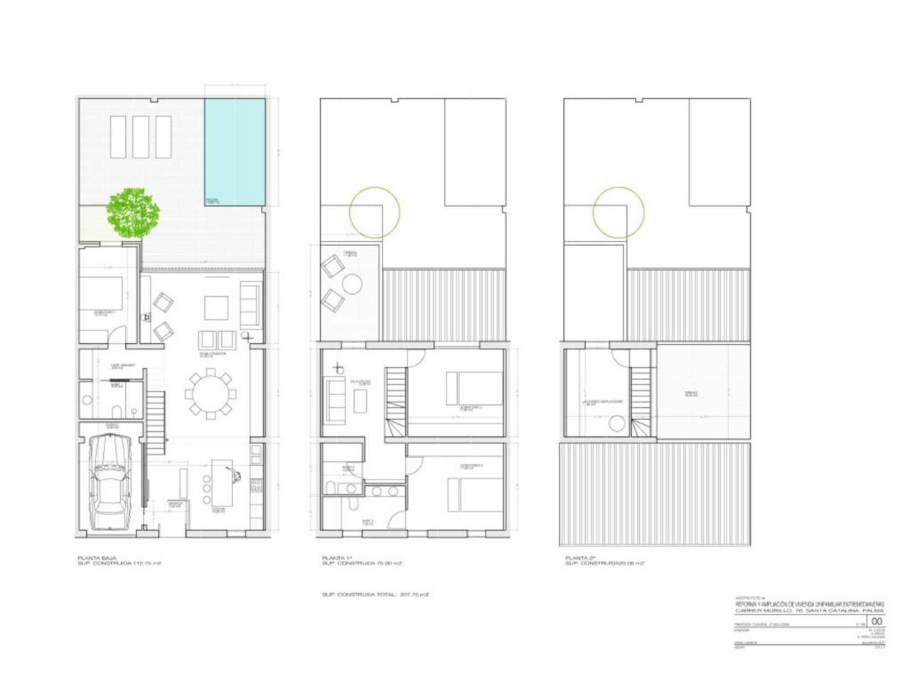
Situada en el codiciado barrio de Santa Catalina en Palma, esta casa adosada ofrece una excepcional combinación de diseño moderno y comodidad urbana. Con un diseño cuidadosamente planificado y repartido en tres niveles, esta propiedad representa una oportunidad única para disfrutar de un estilo de vida contemporáneo en una de las zonas más vibrantes de Palma. La planta baja le da la bienvenida con una cocina de concepto abierto equipada con electrodomésticos de alta gama, conectada de forma fluida con las áreas de comedor y sala de estar. Grandes ventanales inundan el espacio de luz natural, mientras que el acceso directo a una terraza privada crea el escenario perfecto para disfrutar al aire libre. Las plantas superiores albergan tres amplios dormitorios, incluyendo una lujosa suite principal con baño privado y vestidor, garantizando privacidad y comodidad. Diseñada pensando en el confort, la casa está equipada con aire acondicionado centralizado, calefacción por suelo radiante y un sistema inteligente que permite controlar diversas funciones a distancia. Un garaje privado con espacio para un vehículo aporta el toque final a este encantador oasis urbano. Perfectamente situada a poca distancia a pie del reconocido mercado de Santa Catalina, boutiques exclusivas y una amplia variedad de restaurantes, esta casa adosada completamente amueblada combina la vida en la ciudad con el confort moderno. La vibrante atmósfera de la zona, junto con la conveniencia de tener todos los servicios cerca, hace que esta propiedad sea realmente especial. Ya sea como residencia principal o como exclusivo refugio vacacional, esta casa es una elección excepcional para quienes buscan sofisticación moderna en el corazón de Palma. #ref:6096
- 3 habs ·
- 2 baños ·
- 120 m² ·
- Pàrquing
