Dúplex amb piscina a Cataixa, Acorán, Suroeste
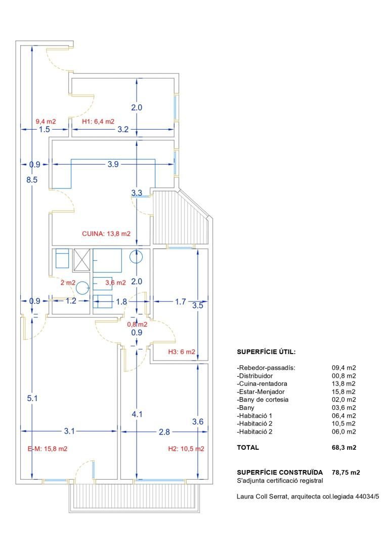
APARTAMENTO EN TENERIFE ZONA ACORÁN. ÁTICO DUPLEX CON VISTAS A LA ISLA DE GRAN CANARIA. ZONAS COMUNITARIAS CON 2 PISCINAS, ZONAS AJARDINADAS Y 2 PLAZAS DE PARKING INCLUDIDAS. EL PISO CUENTA CON TRES TERRAZAS. 3 HABITACIONES; DOS DOBLES, DOS BAÑOS UNO EN SUITE, COCINA GRANDE CON LAVANDERÍA. MUY SOLEADO ORIENTACIÓN SURESTE. SOL POR LA MAÑANA LADO MAR Y SOL POR LA TARDE LADO TEIDE. MEDIDAS: 1) COCINA: 11M2 2) COMEDOR: 21M2 3) HABITACIÓN SUITE: 17M2 4) HABITACIÓN DOBLE: 13M2 5) HABITACIÓN DOBLE 2: 11M2 6) TERRAZA INFERIOR: 10M2 7) TERRAZAS SUPERIORES: 54M2 METROS CONSTRUIDOS CATRASTRO: 225M2 METROS CONSTRUIDOS PISO: 115M2 METROS ÚTILES CEDULA: 97M2 * Dispone de ascensor * Zona comunitaria con jardín y piscinas. * Muy soleado * excelentes vistas. * 2 baños uno en suite. * 3 Terrazas; 2 en la parte superior y 1 en la inferior. * 2 Plazas de parking incluidas en precio. NO INCLUYE ITP, NOTARIA, AJD NI COMISIÓN AGENCIA. ROGAMOS CONSULTAR. OFRECEMOS HIPOTECAS DESDE 1,80-1,90 FIJAS
- 3 habs·
- 2 baños·
- 225 m²·
- 5ª planta

